Advertisement

Home plan: Victorian for the new century

August 20, 2016 at 3:19PM
Home plan for 082116: Victorian home for the new century
Home plan for 082116: Victorian home for the new century (The Minnesota Star Tribune)
Advertisement

PLAN HOTW160034

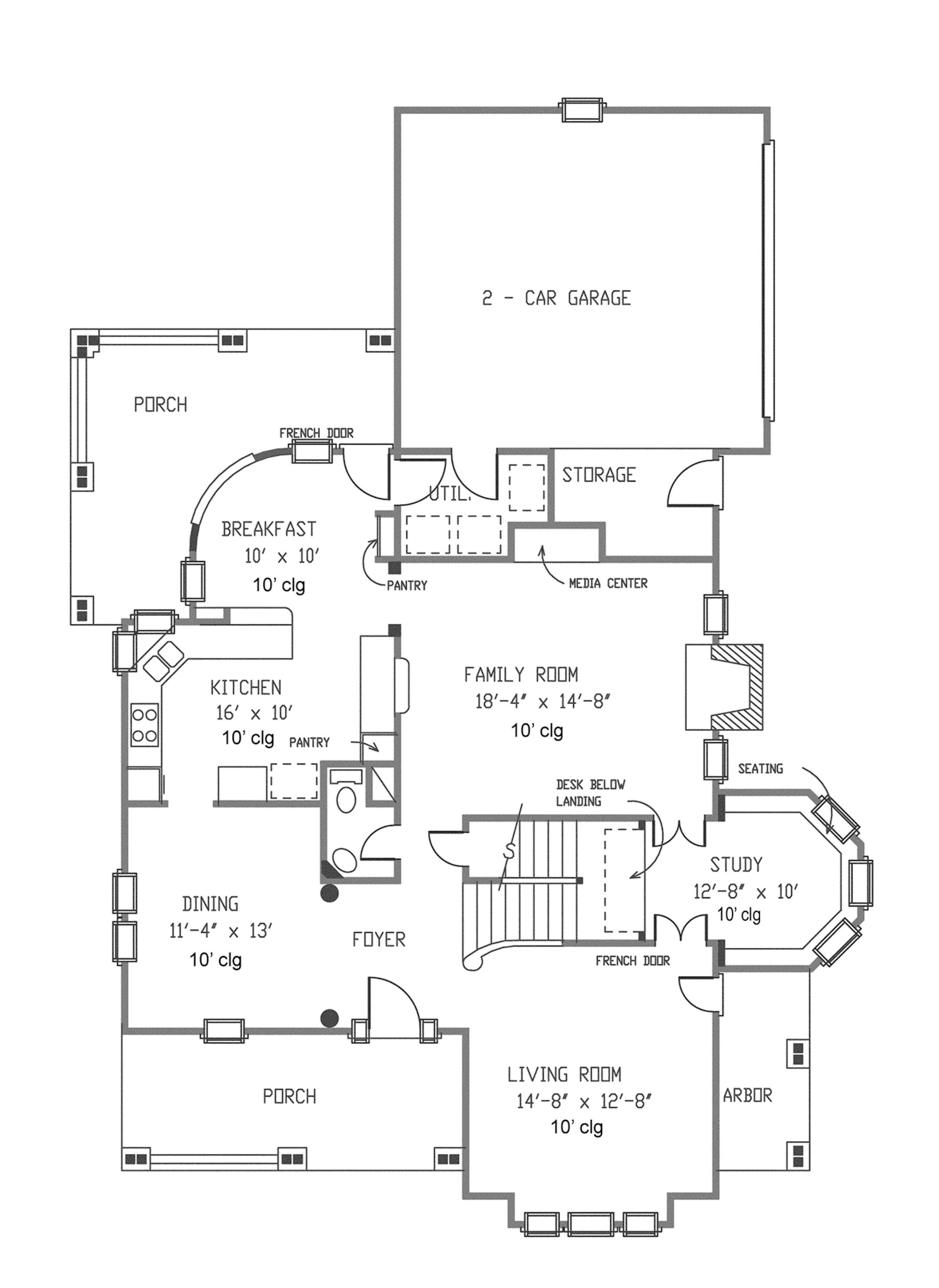
Total finished sq. ft.: 2,772

Bed/bathrooms: 4/4

Stories: 2

Garage bays: 2

Foundation: Slab

Bay windows and decorative trim showcase Victorian-style flair on the exterior of this home. The large family room boasts a fireplace and media center. The well-equipped kitchen has access to the formal dining room and the cozy, curved breakfast room. A secluded study with a bright bay window is located between the family room and living room. The first floor features 10-foot ceilings throughout. Upstairs, the luxe master suite offers a garden tub and huge walk-in closet. The three other bedrooms also have abundant closet space. One bedroom includes a private bath and an alcove, giving privacy to an older child or a live-in relative. In the version of the home built here, the front porch has been modified and extended.

For information or to buy plans, contact Eplans at eplans.com or call 1-866-228-0193.

Advertisement
Home plan for 082116: Victorian home for the new century
Home plan for 082116: Victorian home for the new century (The Minnesota Star Tribune)
(The Minnesota Star Tribune)
about the writer

about the writer

More from Business

See More
card image
Renée Jones Schneider/The Minnesota Star Tribune

A California man was accused of hiring a friend for a fictitious position and receiving a portion of wages from the no-show job via kickbacks.

card image
Sleep Number headquarters in downtown Minneapolis. (DAVID JOLES)
Advertisement