Advertisement

Home plan: Craftsman for the new century

April 7, 2017 at 8:11PM
Home plan: a Craftsman for the new century
Home plan: a Craftsman for the new century (The Minnesota Star Tribune)
Advertisement

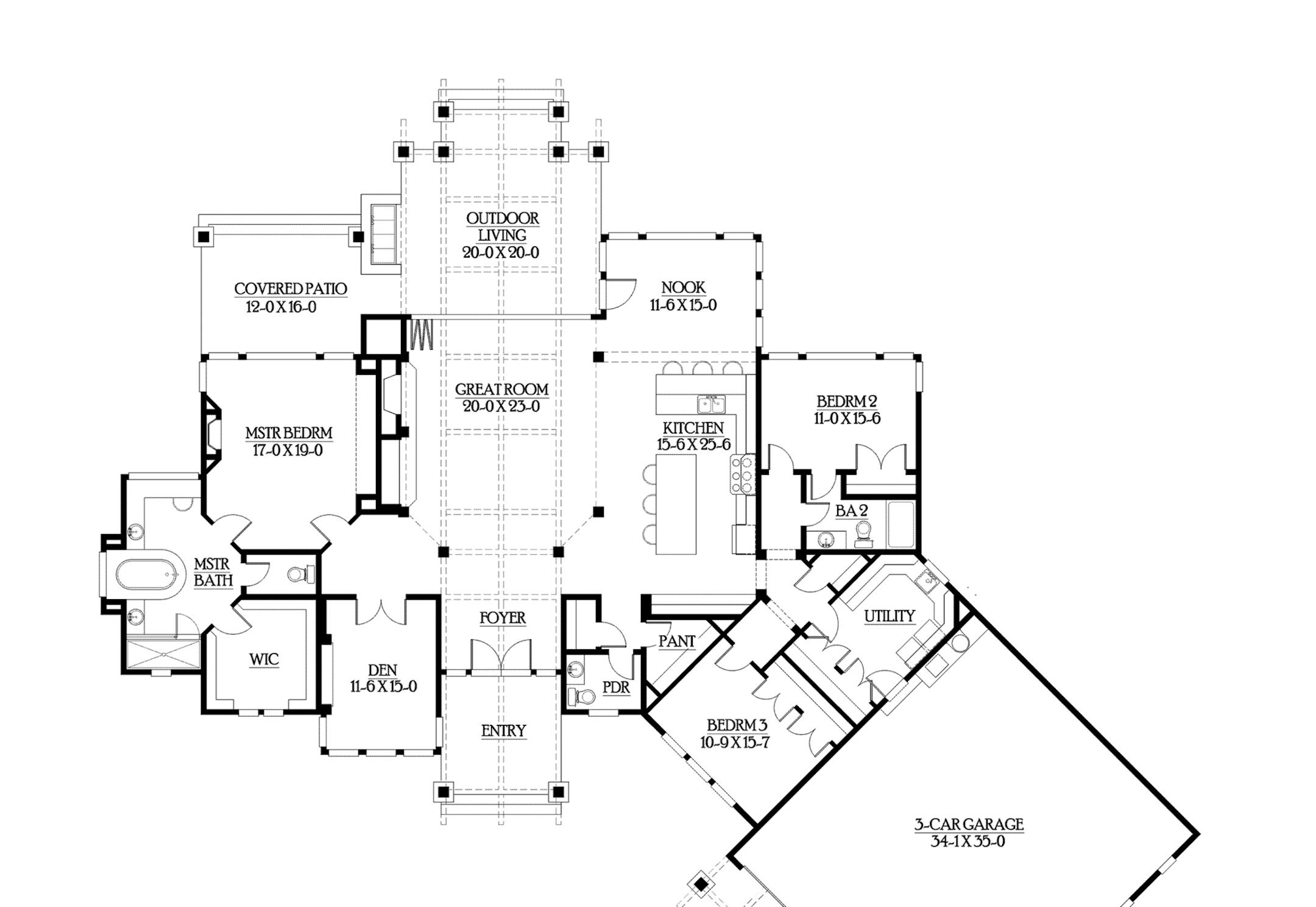
PLAN HOTW170011

Total finished sq. ft.: 3,135

Bed/bathrooms: 3/3

Stories: 1

Garage bays: 3

Foundation: Crawlspace

This one-story home begins with an exterior defined by trusses in the stacked gables and stone wrapping around the base of the house. The open layout encourages mingling in the coffered ceilinged great room and kitchen area with a bright breakfast nook. The casual kitchen island and bar can seat up to six people. The master suite retreat is appointed with a fireplace, roomy bathroom and big walk-in closet. Two more bedrooms, each well lit by windows, are on the opposite side of the plan. Two patios provide plenty of barbecue room in back.

For information or to buy plans, contact Eplans at eplans.com or call 1-866-228-0193.

Advertisement
Home plan: a Craftsman for the new century
Home plan: a Craftsman for the new century (The Minnesota Star Tribune)
about the writer

about the writer

More from Business

See More
card image
Renée Jones Schneider/The Minnesota Star Tribune

A California man was accused of hiring a friend for a fictitious position and receiving a portion of wages from the no-show job via kickbacks.

card image
Sleep Number headquarters in downtown Minneapolis. (DAVID JOLES)
Advertisement