Efficient country cottage

January 9, 2009 at 5:07PM
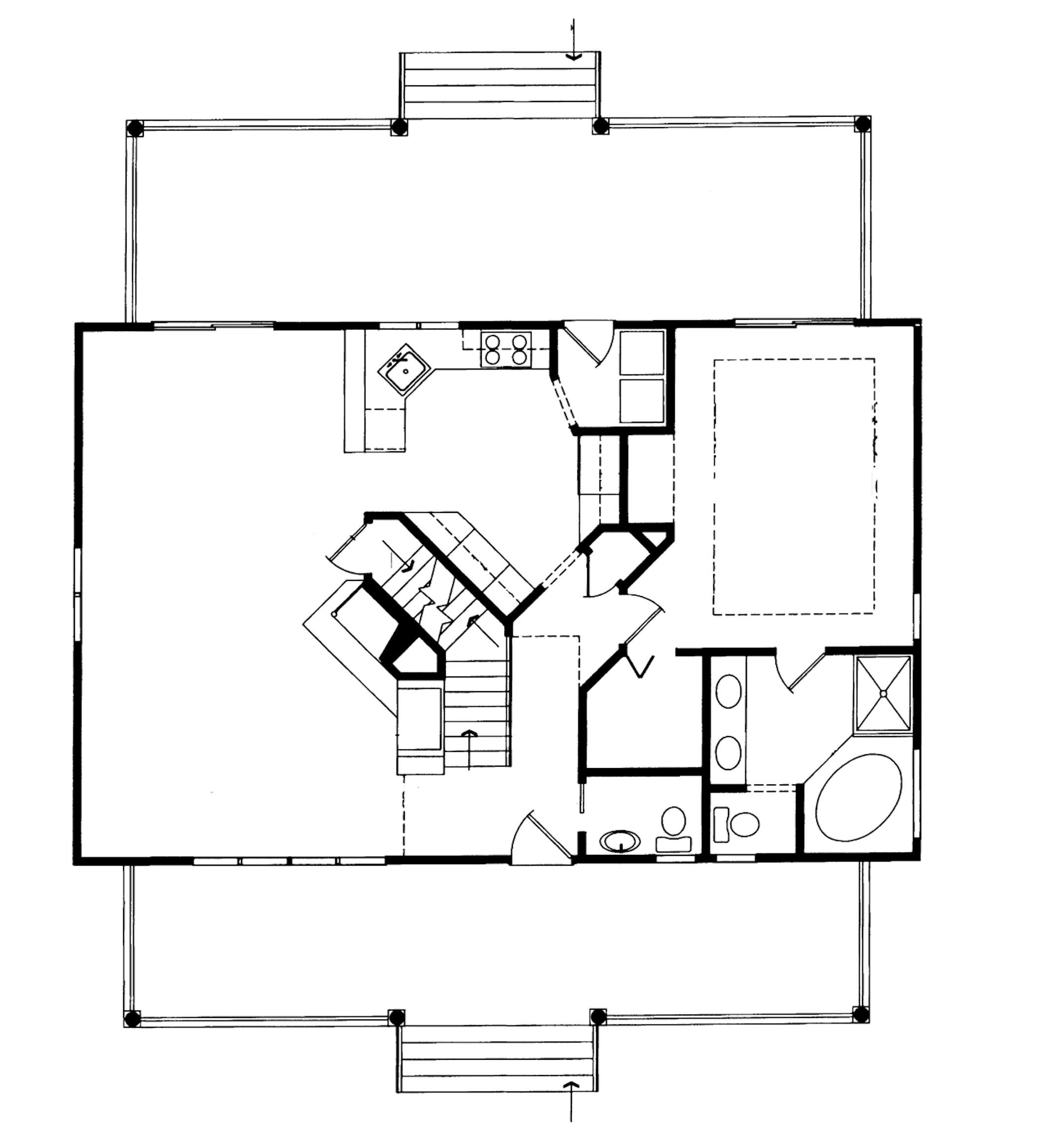
homeplan AX-94322, first floor
homeplan AX-94322, first floor (Star Tribune/The Minnesota Star Tribune)

This country cottage has wide angled spaces and high ceilings in the great room and master bedroom. The great room has a fireplace, TV niche and access to a rear porch. Master suite amenities include a tray ceiling, large walk-in closet and private bath with dual-sink vanity, corner tub and a separate shower. The nicely equipped kitchen offers a serving bar and pantry. A nearby mudroom and laundry have access to the back porch. On the upper floor, a pair of secondary bedrooms flank the balcony and shared hall bath. The optional daylight basement includes a tuck-under two-car garage. LYNN UNDERWOOD

PLAN AX 94322

For information or to buy plans, contact Minneapolis-based Homeplans.com at www.homeplans.com or call 1-888-836-8969.

Total finished 1,679 sq. feet

Main floor 1,134 sq. feet

Upper floor545 sq. feet

Optional daylight basement618 sq. feet

Bed/bathrooms 3/21/2

homeplan AX-94322
homeplan AX-94322 (Star Tribune/The Minnesota Star Tribune)
about the writer

about the writer

More from Business

See More
card image
Richard Tsong-Taatarii/The Minnesota Star Tribune

The “economic blackout” day creates unnecessary risk for people who are on the side of getting ICE out of Minnesota.

card image