Traditional farmhouse with a modern vibe

September 8, 2017 at 8:37PM
Traditional farmhouse with a modern vibe. plan091017
Traditional farmhouse with a modern vibe. plan091017 (The Minnesota Star Tribune)

PLAN HOTW170034

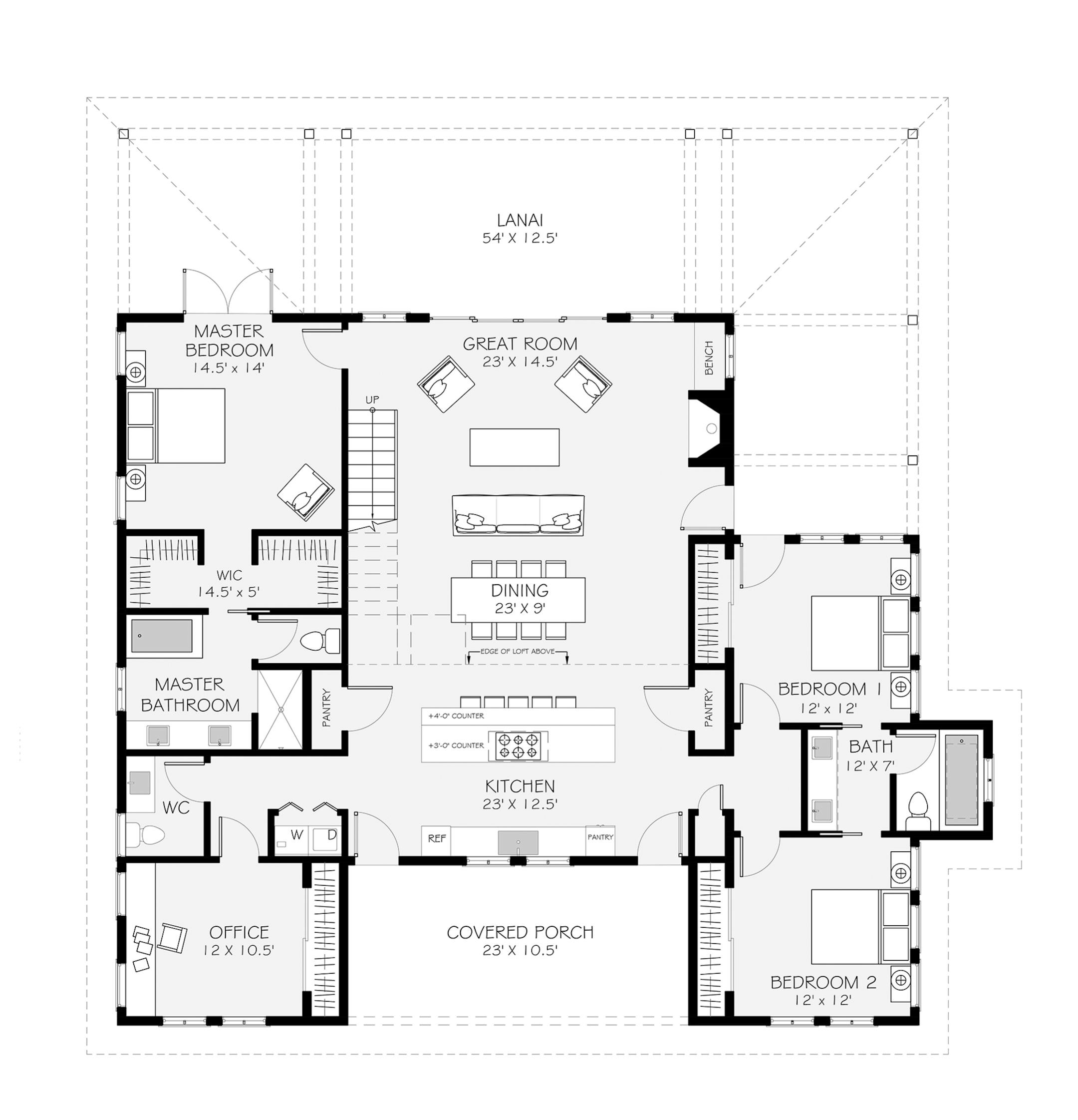
Total finished sq. ft.: 2,720

Bed/bathrooms: 3/3

Stories: 2

Foundation: Slab

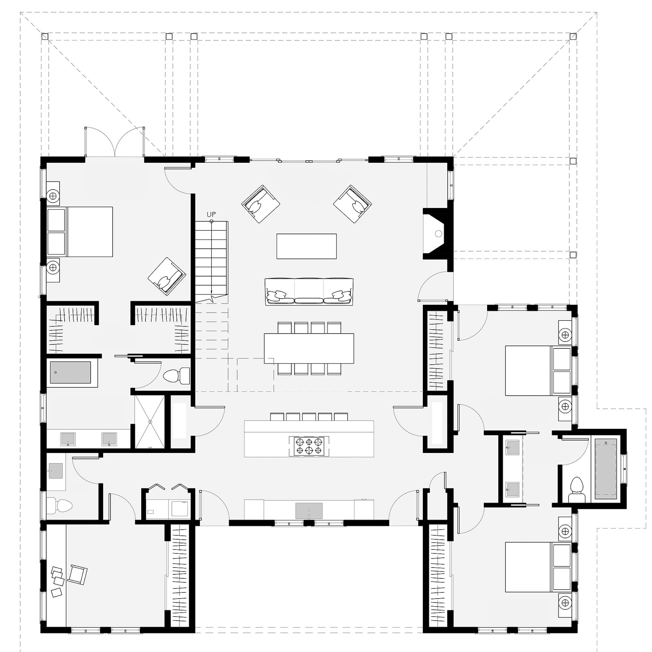
The clean-lined exterior is simple, yet dramatic. The modern, open layout combines the island kitchen, dining area and great room into one easy-living space. In the middle of the home, the extra-wide island invites everyone to gather in the kitchen. The split-bedroom configuration gives plenty of privacy to the master suite, which is appointed with a soaking tub and shower. Double walk-in closets and a luxe bathroom with a large shower complete this private retreat. The office provides a bright space for working or hobbies. In the middle of the home, the extra-wide island invites everyone to gather in the kitchen. Porches in front and back are for outdoor entertaining. An upstairs loft can become a quiet reading area, or a fun zone for kids.

For information or to buy plans, contact Eplans at eplans.com or call 1-866-228-0193.


Traditional farmhouse with a modern vibe. plan091017
Traditional farmhouse with a modern vibe. plan091017 (The Minnesota Star Tribune)
Traditional farmhouse with a modern vibe. plan091017
Traditional farmhouse with a modern vibe. plan091017 (The Minnesota Star Tribune)
Traditional farmhouse with a modern vibe. plan091017
Traditional farmhouse with a modern vibe. plan091017 (The Minnesota Star Tribune)
Traditional farmhouse with a modern vibe. plan091017
Traditional farmhouse with a modern vibe. plan091017 (The Minnesota Star Tribune)
about the writer

about the writer

More from No Section

See More
FILE -- A rent deposit slot at an apartment complex in Tucker, Ga., on July 21, 2020. As an eviction crisis has seemed increasingly likely this summer, everyone in the housing market has made the same plea to Washington: Send money — lots of it — that would keep renters in their homes and landlords afloat. (Melissa Golden/The New York Times) ORG XMIT: XNYT58
Melissa Golden/The New York Times

It’s too soon to tell how much the immigration crackdown is to blame.