Sprawling ranch offers room to expand

May 4, 2018 at 8:12PM
Home plan: Sprawling ranch offers room to expand
Home plan: Sprawling ranch offers room to expand (The Minnesota Star Tribune)

PLAN HOTW180017

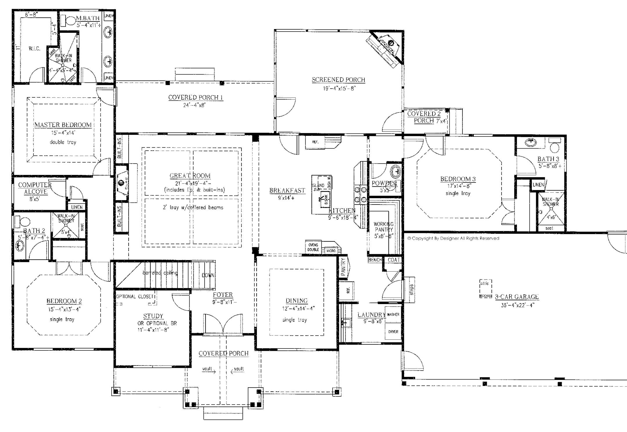
Total finished sq. ft.: 2,718

Bed/bathrooms: 3 /4

Stories: 1

Garage bays: 3

Foundation: Unfinished walkout basement

Every bedroom is a suite and the layout is open and flowing in this Craftsman-style ranch. The island kitchen opens to a fireplace-warmed screened porch for year-round outdoor living. Across the home, the master suite features a computer alcove, a tray ceiling in the bedroom and private door to the porch. The basement can be finished to hold two more bedrooms, a kitchenette, exercise room and various fun rooms.

For information or to buy plans, contact Eplans at eplans.com or call 1-866-228-0193.

Home plan: Sprawling ranch offers room to expand
Home plan: Sprawling ranch offers room to expand (The Minnesota Star Tribune)
about the writer

about the writer

More from No Section

See More
FILE -- A rent deposit slot at an apartment complex in Tucker, Ga., on July 21, 2020. As an eviction crisis has seemed increasingly likely this summer, everyone in the housing market has made the same plea to Washington: Send money — lots of it — that would keep renters in their homes and landlords afloat. (Melissa Golden/The New York Times) ORG XMIT: XNYT58
Melissa Golden/The New York Times

It’s too soon to tell how much the immigration crackdown is to blame.