Advertisement

Home plan: Welcoming wraparound porch

October 11, 2019 at 7:15PM
Home plan: A welcoming wrap-around porch
Home plan: A welcoming wrap-around porch (The Minnesota Star Tribune)
Advertisement

PLAN 929-1062

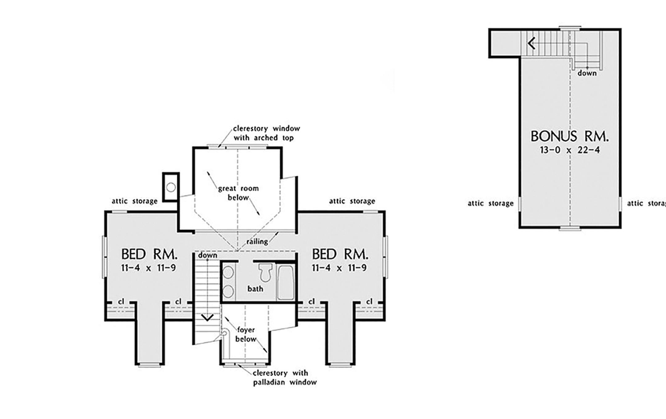
Total finished sq. ft.: 1,963

Bed/bathrooms: 3 /3 • Stories: 2

Bonus space: 380 sq. ft. • Garage bays: 2

Foundation: Basement, crawl space, slab

A large wraparound porch makes this family-friendly country design stand out. A breezeway provides a covered transition from the two-car garage into the main home. Skylights and a bay window make the breakfast nook bright and cheerful. French doors create seamless indoor-outdoor living between the great room and rear patio/deck. The main-level private master suite showcases a walk-in closet and easy access to the rear deck. Upstairs are two more bedrooms and a bathroom. A bonus room is available for later expansion upstairs.

For information or to buy plans, contact Eplans at eplans.com or call 1-800-528-8070.


The main level
The main level (The Minnesota Star Tribune)
The second level and bonus space.
The second level and bonus space. (The Minnesota Star Tribune)
about the writer

about the writer

Advertisement