Home plan: Traditional country with a twist

January 25, 2019 at 5:27PM
Home plan: Traditional country with a twist.
Home plan: Traditional country with a twist. (The Minnesota Star Tribune)

PLAN 1071-8

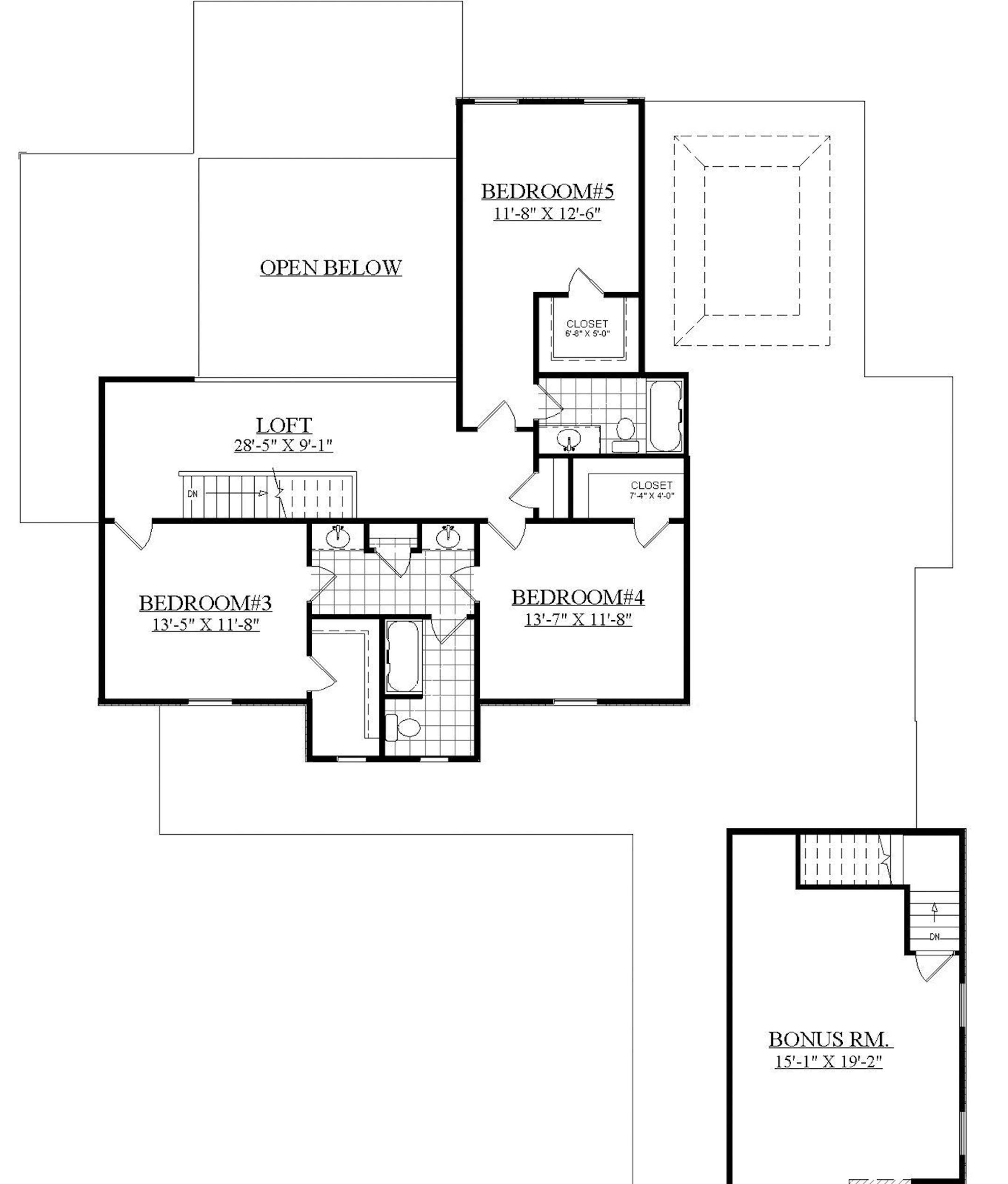
Total finished sq. ft.: 3,461

Bed/bathrooms: 5 /5

Stories: 2 • Bonus space: 359 sq. ft.

Garage bays: 2

Foundation: Basement, crawl space, slab

An inviting front porch gives this plan farmhouse flair. Quartered windows with black trim deliver a classic country feel. The open layout makes it easy to move between the great room, the breakfast nook and island kitchen. The great room is warmed by a fireplace and steps out to the rear porch. The owner's suite, on the right wing of the floor plan, features dual sinks and a large walk-in closet. A home office and formal dining room are both off the foyer. There are three bedrooms and a loft upstairs. A bonus room above the two-car garage could be used as a guest suite or playroom.

For information or to buy plans, contact Eplans at eplans.com or call 1-800-528-8070.


Home plan: Traditional country with a twist.
Home plan: Traditional country with a twist. (The Minnesota Star Tribune)
Home plan: Traditional country with a twist.
Home plan: Traditional country with a twist. (The Minnesota Star Tribune)
about the writer

about the writer

More from No Section

See More
FILE -- A rent deposit slot at an apartment complex in Tucker, Ga., on July 21, 2020. As an eviction crisis has seemed increasingly likely this summer, everyone in the housing market has made the same plea to Washington: Send money — lots of it — that would keep renters in their homes and landlords afloat. (Melissa Golden/The New York Times) ORG XMIT: XNYT58
Melissa Golden/The New York Times

It’s too soon to tell how much the immigration crackdown is to blame.