Home plan: Stylish, modern farmhouse has curb appeal

November 22, 2019 at 7:46PM
Home plan: A wide front porch, large windows (with chic shutters), and board and batten siding deliver loads of curb appeal to this farmhouse design.
Home plan: A wide front porch, large windows (with chic shutters), and board and batten siding deliver loads of curb appeal to this farmhouse design. (The Minnesota Star Tribune)

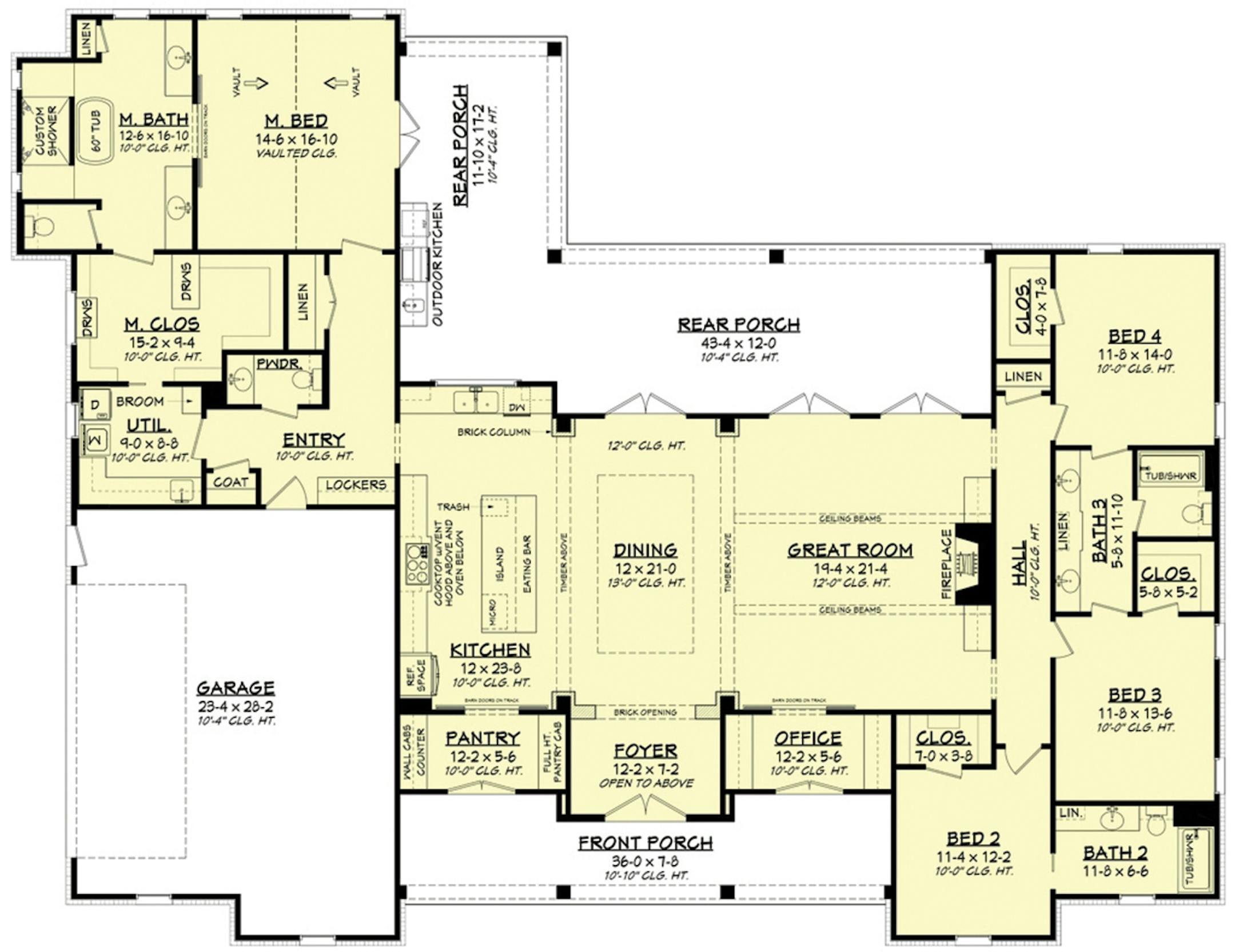
This fresh modern farmhouse offers an open layout and outdoor living — multiple sets of French doors connect the main living area to the rear porch. A large veranda in front adds style, and the master suite has privacy and a spacious walk-in closet. Other highlights: a great-room fireplace, walk-in pantry and a mudroom with lockers.

For information or to buy plans, contact Eplans at eplans.com or call 1-800-528-8070.

Plan 430-197

Total finished sq. ft.: 3,076

Bedrooms/Baths: 4 /3.5

Stories: 1 Garage bays: 2

Foundation: Slab, crawl space, full or walkout

Home plan: A wide front porch, large windows (with chic shutters), and board and batten siding deliver loads of curb appeal to this farmhouse design.
Home plan: A wide front porch, large windows (with chic shutters), and board and batten siding deliver loads of curb appeal to this farmhouse design. (The Minnesota Star Tribune)
Home plan: A wide front porch, large windows (with chic shutters), and board and batten siding deliver loads of curb appeal to this farmhouse design.
Home plan: A wide front porch, large windows (with chic shutters), and board and batten siding deliver loads of curb appeal to this farmhouse design. (The Minnesota Star Tribune)
about the writer

about the writer

More from No Section

See More
FILE -- A rent deposit slot at an apartment complex in Tucker, Ga., on July 21, 2020. As an eviction crisis has seemed increasingly likely this summer, everyone in the housing market has made the same plea to Washington: Send money — lots of it — that would keep renters in their homes and landlords afloat. (Melissa Golden/The New York Times) ORG XMIT: XNYT58
Melissa Golden/The New York Times

It’s too soon to tell how much the immigration crackdown is to blame.