Advertisement

Home plan: Seamless indoor-outdoor living

Contemporary design features courtyard space.

November 1, 2019 at 4:27PM
Home plan: Seamless indoor-outdoor living
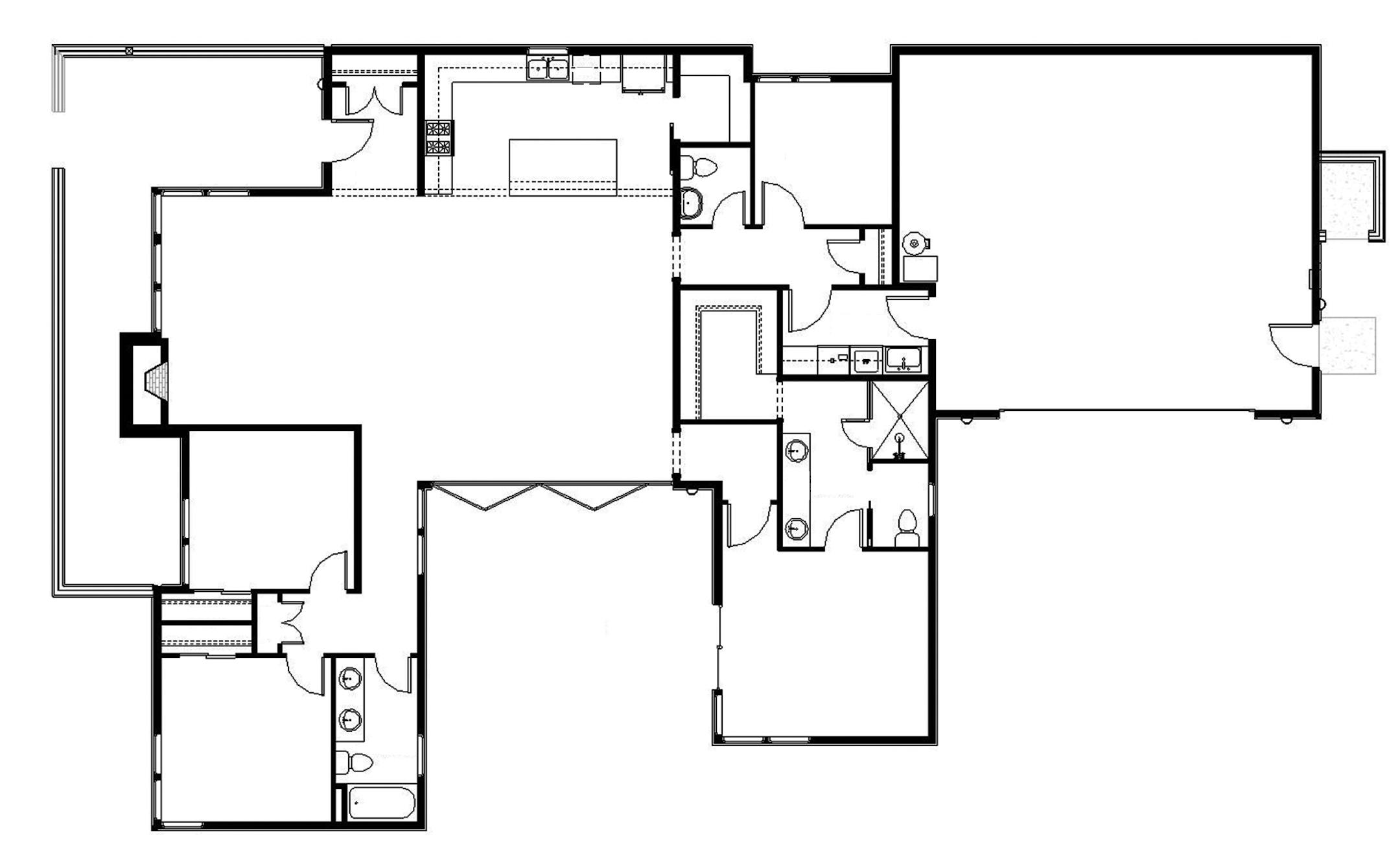
PLAN 895-101 (The Minnesota Star Tribune)
Advertisement

PLAN 895-101

Total finished sq. ft.: 2,235

Bed/bathrooms: 3 /3

Stories: 1

Garage bays: 2

Foundation: Basement, crawl space, slab

This contemporary home includes sleek lines and large windows for natural light. Enclosed by three walls, the courtyard allows homeowners to relax outside. Accordion glass doors create a smooth transition from the dining area to the outdoor space for easy entertaining. Inside, the modern layout includes a large kitchen that opens to the living room for a seamless flow. Two bedrooms are on one end of the main floor, while the master suite is on the other. The master suite also steps out to the courtyard.

For information or to buy plans, contact Eplans at eplans.com or call 1-800-528-8070.

Advertisement
Home plan: Seamless indoor-outdoor living
PLAN 895-101 (The Minnesota Star Tribune)
Home plan: Seamless indoor-outdoor living
Home plan: Seamless indoor-outdoor living (The Minnesota Star Tribune)
about the writer

about the writer

Advertisement