Home plan: Rustic charm

October 17, 2015 at 4:28PM
Home plan for Oct. 11, 2015: Dramatic home has rustic charm
Dramatic home has rustic charm (The Minnesota Star Tribune)

PLAN HOTW150038

Total finished sq. ft.: 3,691

Bed/bathrooms: 4 /5

Stories: 2

Garage bays: 3

Foundation: Crawlspace

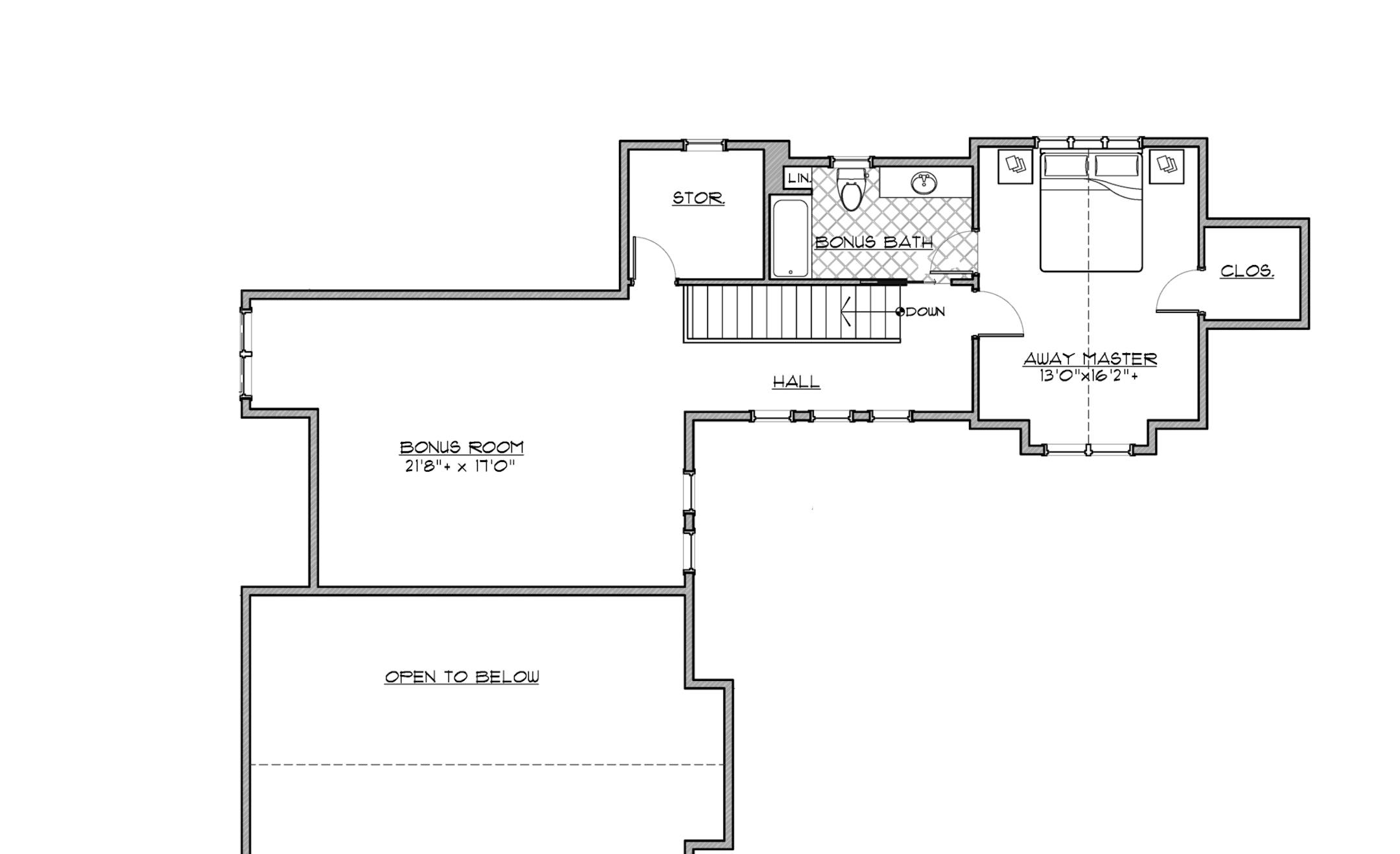
This rugged lodge home displays a dramatic entry with stone columns and exposed brackets. Inside, the entry foyer and great room boasts a 17-foot vaulted ceiling, which guides you to a large wall of windows at the rear of the home showcasing the view. The dining nook offers views with glass on three sides, and the kitchen's cooktop island has snack-bar seating. The plan features three suites downstairs, including a luxe master suite with access to the terrace. Upstairs, an additional suite can share its bath with the bonus room area.

For information or to buy plans, contact Eplans at www.eplans.com or call 1-866-228-0193.

(The Minnesota Star Tribune)
(The Minnesota Star Tribune)
about the writer

about the writer

More from No Section

See More
FILE -- A rent deposit slot at an apartment complex in Tucker, Ga., on July 21, 2020. As an eviction crisis has seemed increasingly likely this summer, everyone in the housing market has made the same plea to Washington: Send money — lots of it — that would keep renters in their homes and landlords afloat. (Melissa Golden/The New York Times) ORG XMIT: XNYT58
Melissa Golden/The New York Times

It’s too soon to tell how much the immigration crackdown is to blame.