Home plan: Roomy and charming Craftsman

December 3, 2016 at 2:23PM
A roomy and charming Craftsman for 1204 homeplan
A roomy and charming Craftsman for 1204 homeplan (The Minnesota Star Tribune)

PLAN HOTW160046

Total finished sq. ft.: 3,878

Bed/bathrooms: 4/6

Stories: 2

Bonus space: 649 sq. ft.

Garage bays: 3

Foundation: Crawlspace, slab, unfinished walkout basement

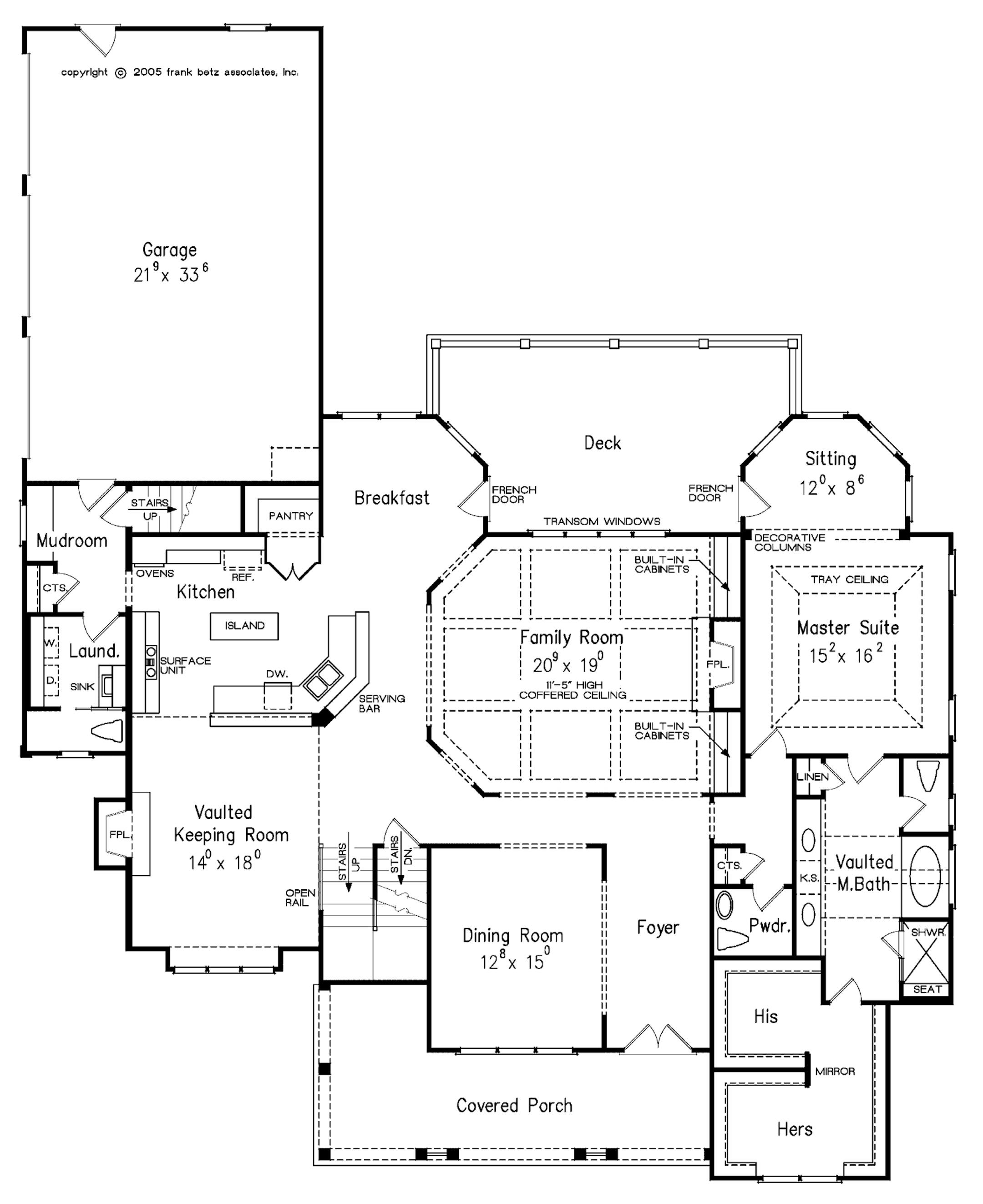
Spacious luxury living is the hallmark of this Craftsman home. The exterior is a harmonious blend of shingles and stone. A coffered ceiling in the family room adds an elegant touch. The dining room is large enough to handle a big crowd, especially with the kitchen's snack bar available to hold appetizers and drinks. The bayed breakfast nook overlooks the rear deck. The master suite offers a sitting room by a bay window and French-door access to the rear deck. The second floor houses three more bedroom suites with full baths. An optional bonus room above the garage offers space for future expansion.

For information or to buy plans, contact Eplans at eplans.com or call 1-866-228-0193.

(The Minnesota Star Tribune)
(The Minnesota Star Tribune)
about the writer

about the writer

More from No Section

See More
FILE -- A rent deposit slot at an apartment complex in Tucker, Ga., on July 21, 2020. As an eviction crisis has seemed increasingly likely this summer, everyone in the housing market has made the same plea to Washington: Send money — lots of it — that would keep renters in their homes and landlords afloat. (Melissa Golden/The New York Times) ORG XMIT: XNYT58
Melissa Golden/The New York Times

It’s too soon to tell how much the immigration crackdown is to blame.