Home plan: Ranch with wraparound porch

With front and back porches and an open floor plan, this home is ready for entertaining.

October 20, 2017 at 6:29PM
PLAN102217: Ranch-style home features wraparound porch.
PLAN102217: Ranch-style home features wraparound porch. (The Minnesota Star Tribune)

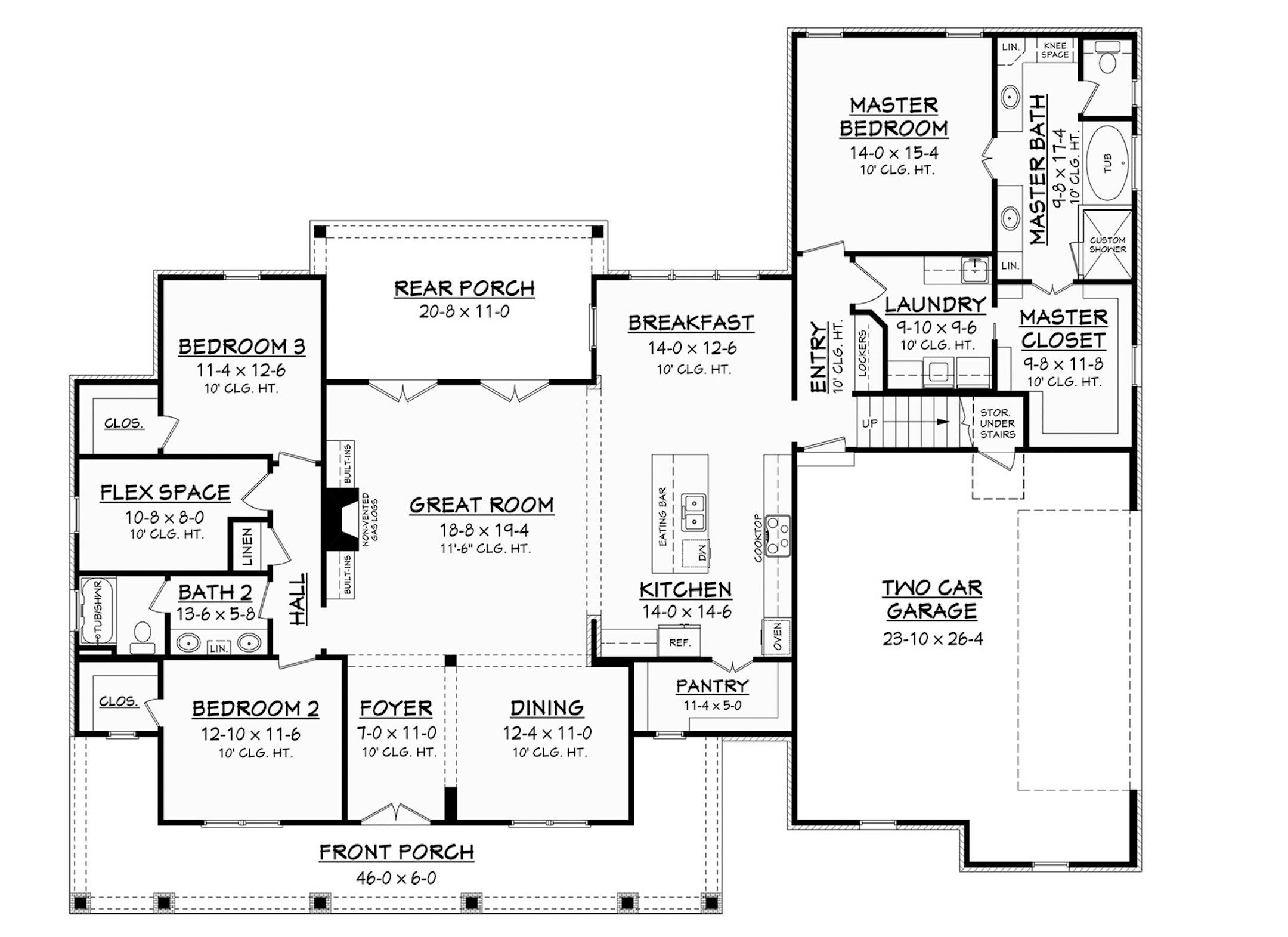
With a wraparound porch in front and another spacious outdoor living area in back, this home is ready for outdoor parties. The inside presents an open-concept layout with a snack bar at the kitchen and a walk-in pantry. Two sets of French doors open the great room to the rear porch. On the left side of the home, a flex space can become a playroom, office or craft room. The master suite's deluxe bathroom includes dual sinks, soaking tub and shower. Walk-in closets and generous storage spaces keep families organized. A bonus room upstairs provides space for future expansion.

PLAN HOTW170041

Total finished sq. ft.: 2,469

Bed/bathrooms: 3/2

Stories: 1

Bonus space: 492 sq. ft.

Garage bays: 2

Foundation: Crawlspace, slab

For information or to buy plans, contact Eplans at eplans.com or call 1-866-228-0193.

Main level
Main level (The Minnesota Star Tribune)
Upper level
Upper level (The Minnesota Star Tribune)
about the writer

about the writer

More from No Section

See More
FILE -- A rent deposit slot at an apartment complex in Tucker, Ga., on July 21, 2020. As an eviction crisis has seemed increasingly likely this summer, everyone in the housing market has made the same plea to Washington: Send money — lots of it — that would keep renters in their homes and landlords afloat. (Melissa Golden/The New York Times) ORG XMIT: XNYT58
Melissa Golden/The New York Times

It’s too soon to tell how much the immigration crackdown is to blame.