Home plan: Neo-prairie style brings the outdoors in

October 22, 2016 at 4:22PM
Home plan for 1023: Neo-prairie style brings the outdoors in
Home plan for 1023: Neo-prairie style brings the outdoors in (The Minnesota Star Tribune)

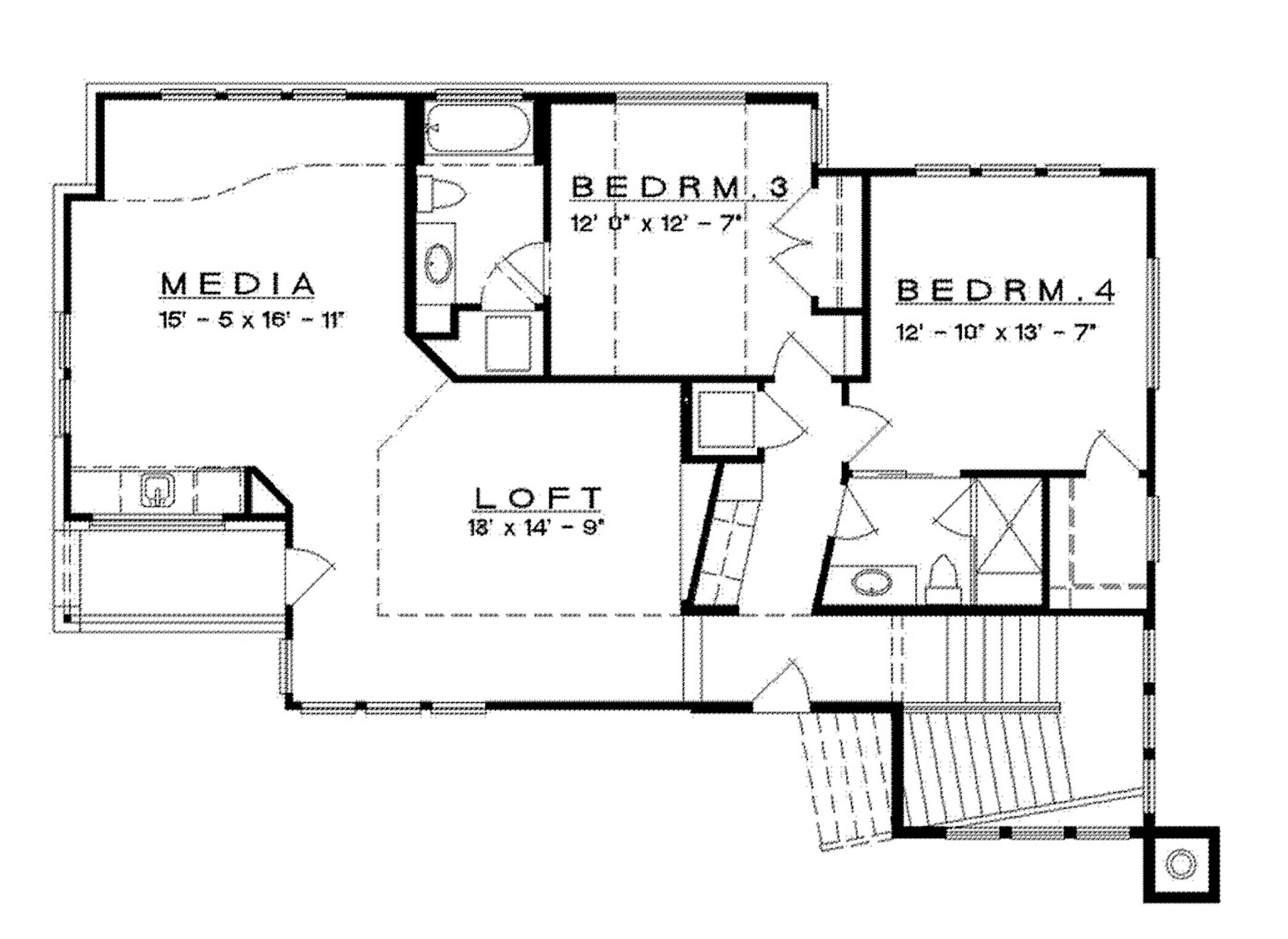
The quirky pivot front door welcomes guests to this warm, contemporary-style home. With wide overhangs and shaded bands of glass, it boasts an open C-shaped floor plan that provides privacy on a narrow lot. The main living spaces open into a courtyard, which could house a swimming pool. Designed for a young family, the home allows parents to monitor children's outdoor play from every room in the house — even from a hanging bed on the porch. The great room steps out to an outdoor living/dining area. A separate foyer leads to a private master suite appointed with a dressing room/walk-in closet and access to the covered porch. The division between indoors and out is blurred by glass placed for good sight lines, but avoiding views of the grill area or neighbors. The second floor features two more bedrooms, a loft and media room.

PLAN HOTW160039

Total finished sq. ft.: 4,237

Bed/bathrooms: 4/4

Stories: 2

Garage bays: 3

Foundation: Slab

For information or to buy plans, contact Eplans at eplans.com or call 1-866-228-0193.

Home plan for 1023: Neo-prairie style brings the outdoors in
Home plan for 1023: Neo-prairie style brings the outdoors in (The Minnesota Star Tribune)
Home plan for 1023: Neo-prairie style brings the outdoors in
Home plan for 1023: Neo-prairie style brings the outdoors in (The Minnesota Star Tribune)
about the writer

about the writer

More from No Section

See More
FILE -- A rent deposit slot at an apartment complex in Tucker, Ga., on July 21, 2020. As an eviction crisis has seemed increasingly likely this summer, everyone in the housing market has made the same plea to Washington: Send money — lots of it — that would keep renters in their homes and landlords afloat. (Melissa Golden/The New York Times) ORG XMIT: XNYT58
Melissa Golden/The New York Times

It’s too soon to tell how much the immigration crackdown is to blame.