Home plan: Modern style home has indoor-outdoor areas

Walkout basement provides more bedroom space.

December 13, 2019 at 8:24PM
Home plan 1073-8
Home plan 1073-8 (The Minnesota Star Tribune)

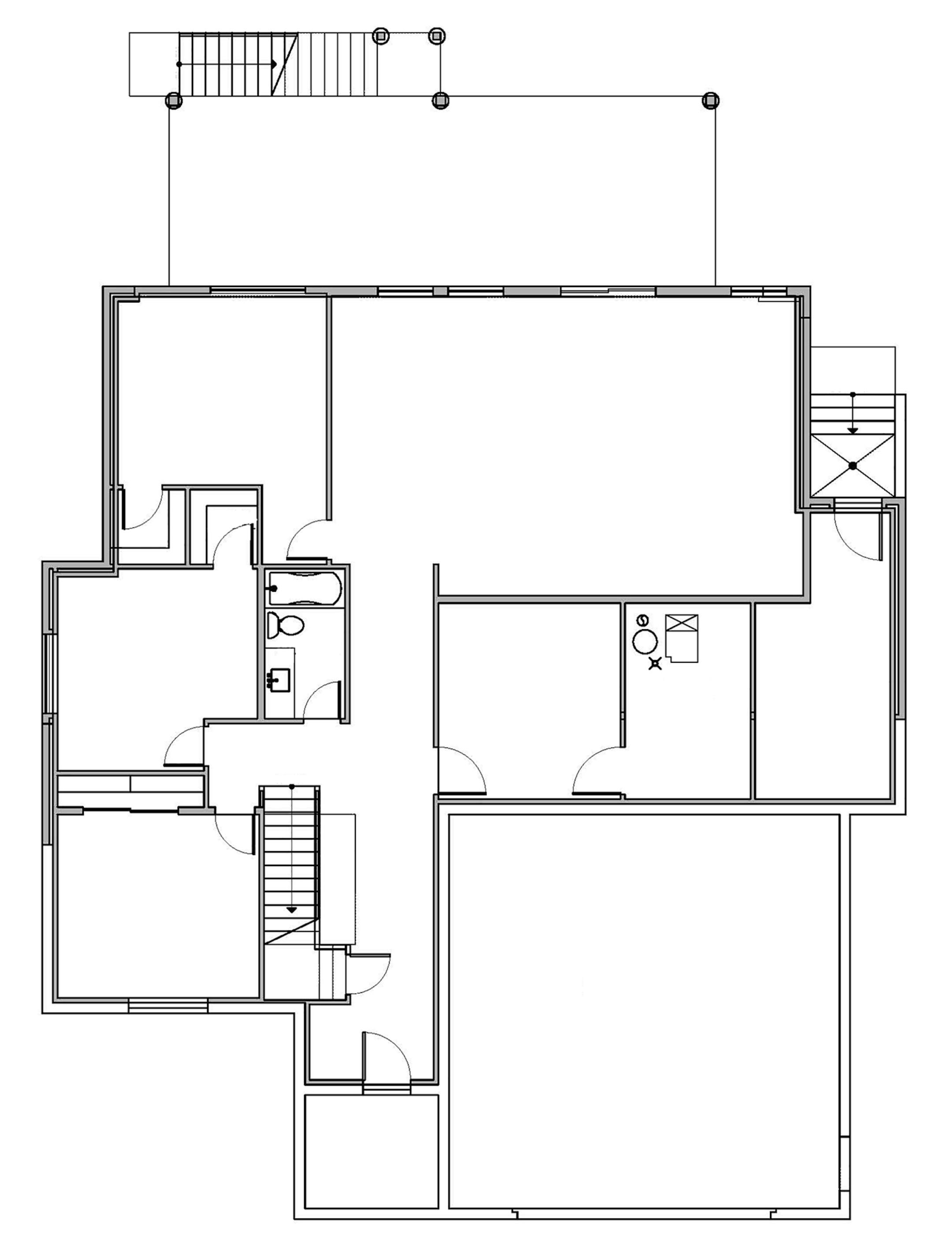
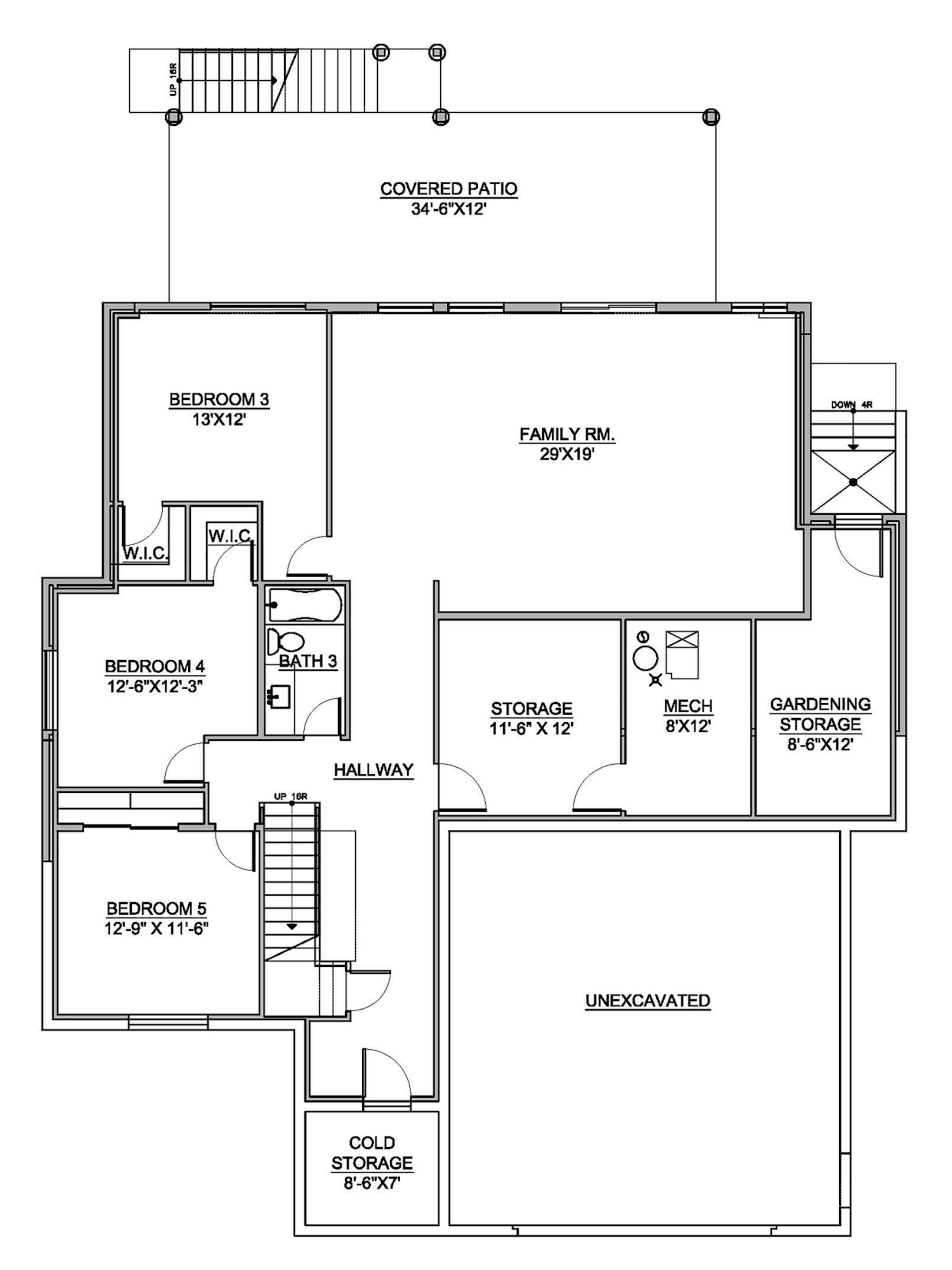
Modern styling with clean lines and mixed siding combine for an attention-grabbing design. The curved roofline adds a soft touch to the exterior, while inside, the open layout in the great room is great for entertaining. Two bedrooms on the main level and three more below house family and friends in comfort. Indoor-outdoor areas on both levels are an added bonus.

For information or to buy plans, contact Eplans at eplans.com or call 1-800-528-8070.

PLAN 1073-8

Total sq. feet: 3,641

Bed/Bath: 5/ 3.5

Stories: 1

Garage bays: 2

Foundation: Walkout, full, crawl space, slab


Home plan: modern and luxurious
Home plan: modern and luxurious (The Minnesota Star Tribune)
Home plan: modern and luxurious
Home plan: modern and luxurious (The Minnesota Star Tribune)
Home plan: modern and luxurious
Home plan: modern and luxurious (The Minnesota Star Tribune)
Home plan: modern and luxurious
Home plan: modern and luxurious (The Minnesota Star Tribune)
about the writer

about the writer

More from No Section

See More
FILE -- A rent deposit slot at an apartment complex in Tucker, Ga., on July 21, 2020. As an eviction crisis has seemed increasingly likely this summer, everyone in the housing market has made the same plea to Washington: Send money — lots of it — that would keep renters in their homes and landlords afloat. (Melissa Golden/The New York Times) ORG XMIT: XNYT58
Melissa Golden/The New York Times

It’s too soon to tell how much the immigration crackdown is to blame.