Home plan: Modern family functionality

September 24, 2016 at 4:07PM
Home plan for 092516: Modern family functionality
Home plan for 092516: Modern family functionality (The Minnesota Star Tribune)

PLAN HOTW160036

Total finished sq. ft.: 3,275

Bed/bathrooms: 4/ 4

Stories: 2

Garage bays: 3

Foundation: Crawlspace, slab

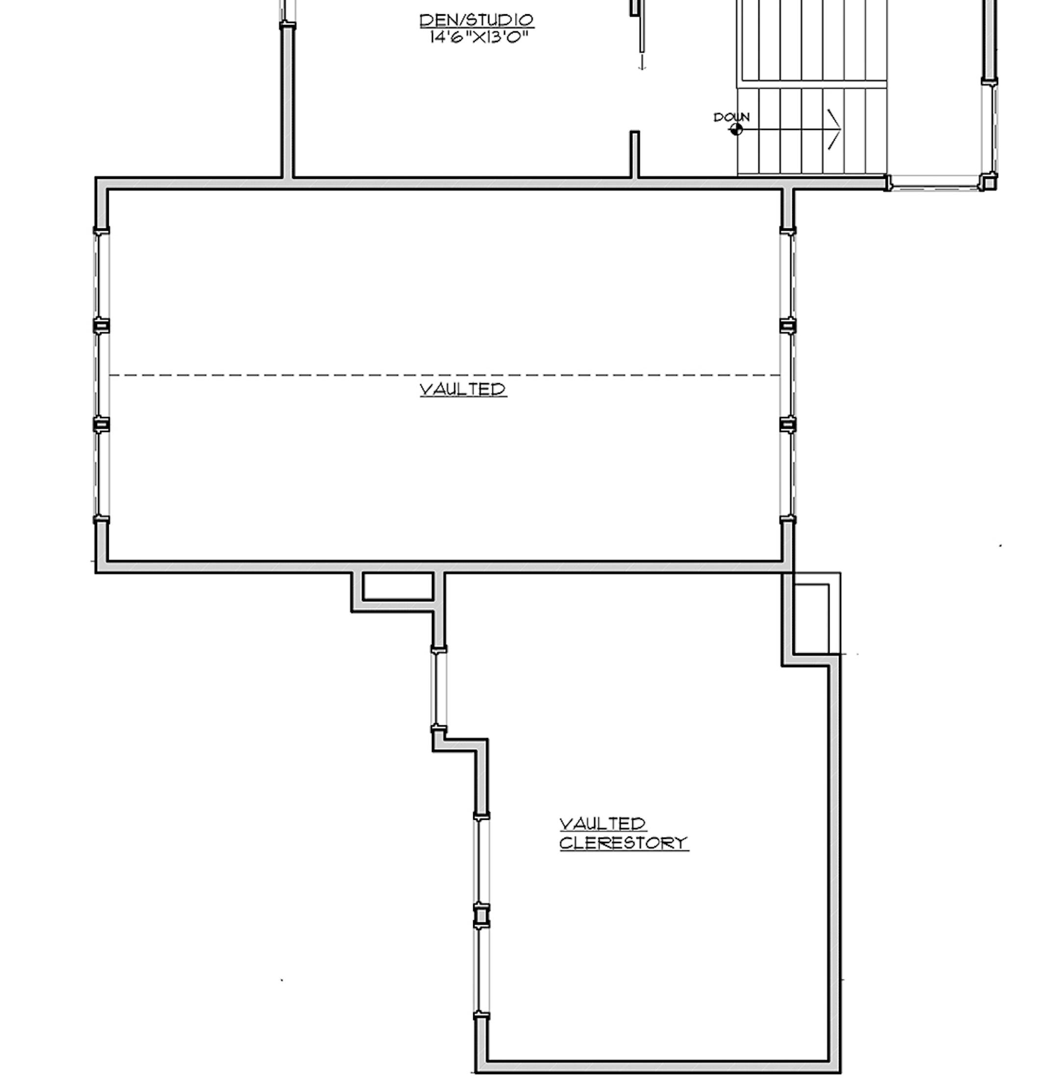
The contemporary exterior displays a variety of windows, including ones that draw light into the stairwell. With a terrace that stretches across much of the footprint of the home, this plan encourages outdoor living. The great room presents a clear view from front to back, making it an airy and inviting space. An island provides space for casual meals in the kitchen, not far from the open dining room and a network of organizational spaces that connect to the garage. Across the home, the master suite features a large private bathroom, walk-in closet and a view of the terrace. In addition to the two secondary bedrooms, another guest space upstairs includes a den/studio and a bathroom.

For information or to buy plans, contact Eplans at eplans.com or call 1-866-228-0193.

Home plan for 092516: Modern family functionality
Modern family functionality (The Minnesota Star Tribune)
Home plan for 092516: Modern family functionality
Home plan for 092516: Modern family functionality (The Minnesota Star Tribune)
about the writer

about the writer