Home plan: Modern design, rustic details

November 15, 2019 at 7:38PM
Home plan: Modern design, rustic details
Wood siding, a metal roof and plenty of windows make this farmhouse both modern and rustic. (The Minnesota Star Tribune)

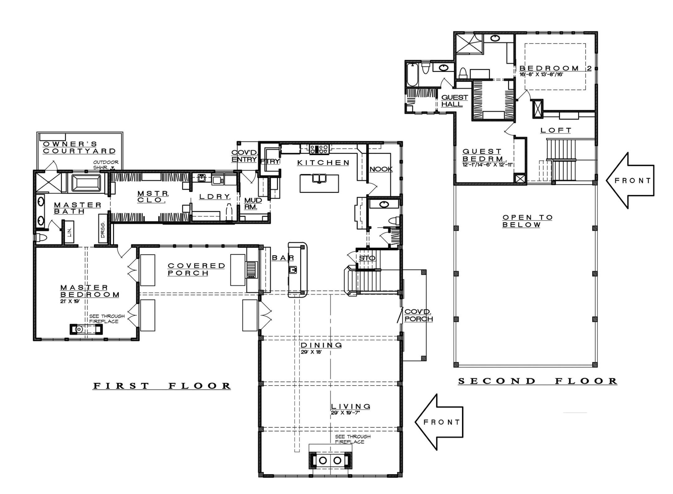
This new design shows off open living spaces and a luxurious master suite. Unique details include see-through fireplaces in both the living room and the master suite, a private owner's courtyard and a bar. A mudroom keeps things clean and organized during busy transitions. Upstairs, there's an additional bedroom, bathroom and a guest suite.

For information or to buy plans, contact Eplans at eplans.com or call 1-800-528-8070.

Plan 935-17

Total finished sq. feet: 4,261

Bed/bathrooms: 3/ 3.5

Stories: 2

Garage bays: 0

Foundation: Slab

Home plan: Modern design, rustic details.
Home plan: Modern design, rustic details. (The Minnesota Star Tribune)
about the writer

about the writer

More from No Section

See More
FILE -- A rent deposit slot at an apartment complex in Tucker, Ga., on July 21, 2020. As an eviction crisis has seemed increasingly likely this summer, everyone in the housing market has made the same plea to Washington: Send money — lots of it — that would keep renters in their homes and landlords afloat. (Melissa Golden/The New York Times) ORG XMIT: XNYT58
Melissa Golden/The New York Times

It’s too soon to tell how much the immigration crackdown is to blame.