Home plan: Modern bungalow is all about the smart details

June 26, 2020 at 2:18PM
Home plan: Modern design filled with smart details.
Home plan: Modern design filled with smart details. (The Minnesota Star Tribune)

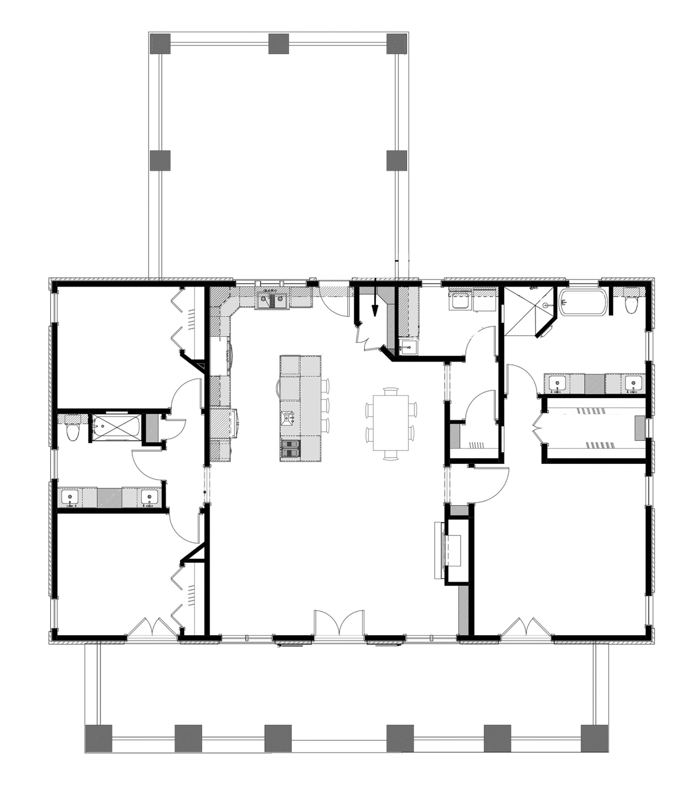
PLAN 44-238

Total sq. feet: 2,160

Bed/Bath: 3 /2 Stories: 1

Garage bays: 2 Foundation: Slab

This classic bungalow design has stunning curb appeal and a layout that's full of smart details. The great room flows effortlessly into the open kitchen, where an island gives you room to hang out. The master suite features a private bathroom that offers dual sinks, a soaking tub, modern shower and a large walk-in closet. Two additional bedrooms are on the left of the floor plan and share a full bathroom. Mixed siding jazzes up the exterior, while elongated windows add a modern touch.

For information or to buy plans, contact Eplans at eplans.com or call 1-800-528-8070.

(The Minnesota Star Tribune)
(The Minnesota Star Tribune)
about the writer

about the writer

More from No Section

See More
FILE -- A rent deposit slot at an apartment complex in Tucker, Ga., on July 21, 2020. As an eviction crisis has seemed increasingly likely this summer, everyone in the housing market has made the same plea to Washington: Send money — lots of it — that would keep renters in their homes and landlords afloat. (Melissa Golden/The New York Times) ORG XMIT: XNYT58
Melissa Golden/The New York Times

It’s too soon to tell how much the immigration crackdown is to blame.