Home plan: Modern barn-inspired design

May 19, 2017 at 8:05PM
Home plan: Classic architectural accents give this modern barn-inspired design a historical look.
Home plan: Classic architectural accents give this modern barn-inspired design a historical look. (The Minnesota Star Tribune)

PLAN HOTW170018

Total finished sq. ft.: 3,799

Bed/bathrooms: 3/ 4

Stories: 2

Garage bays: 2

Foundation: Unfinished daylight basement

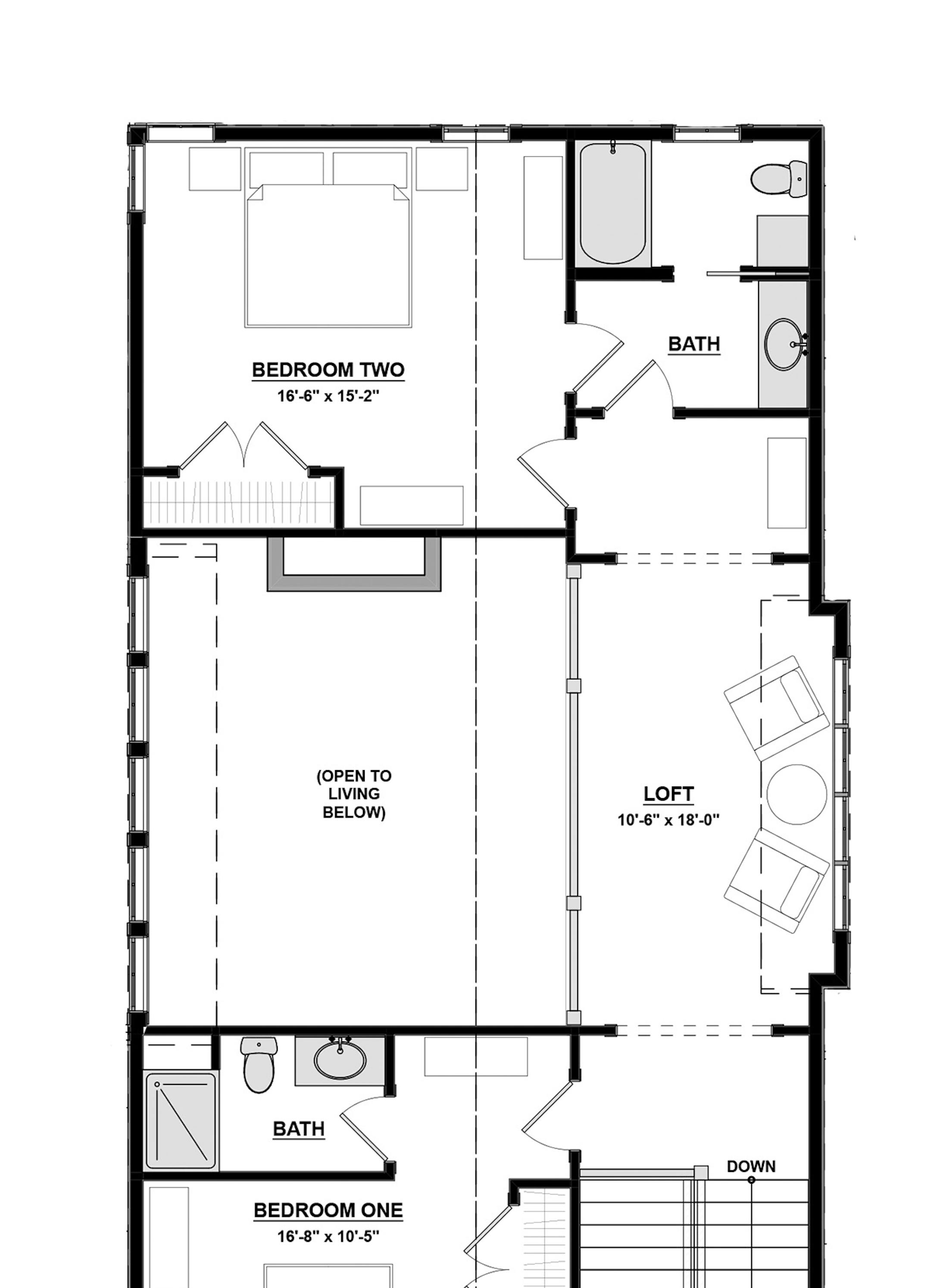
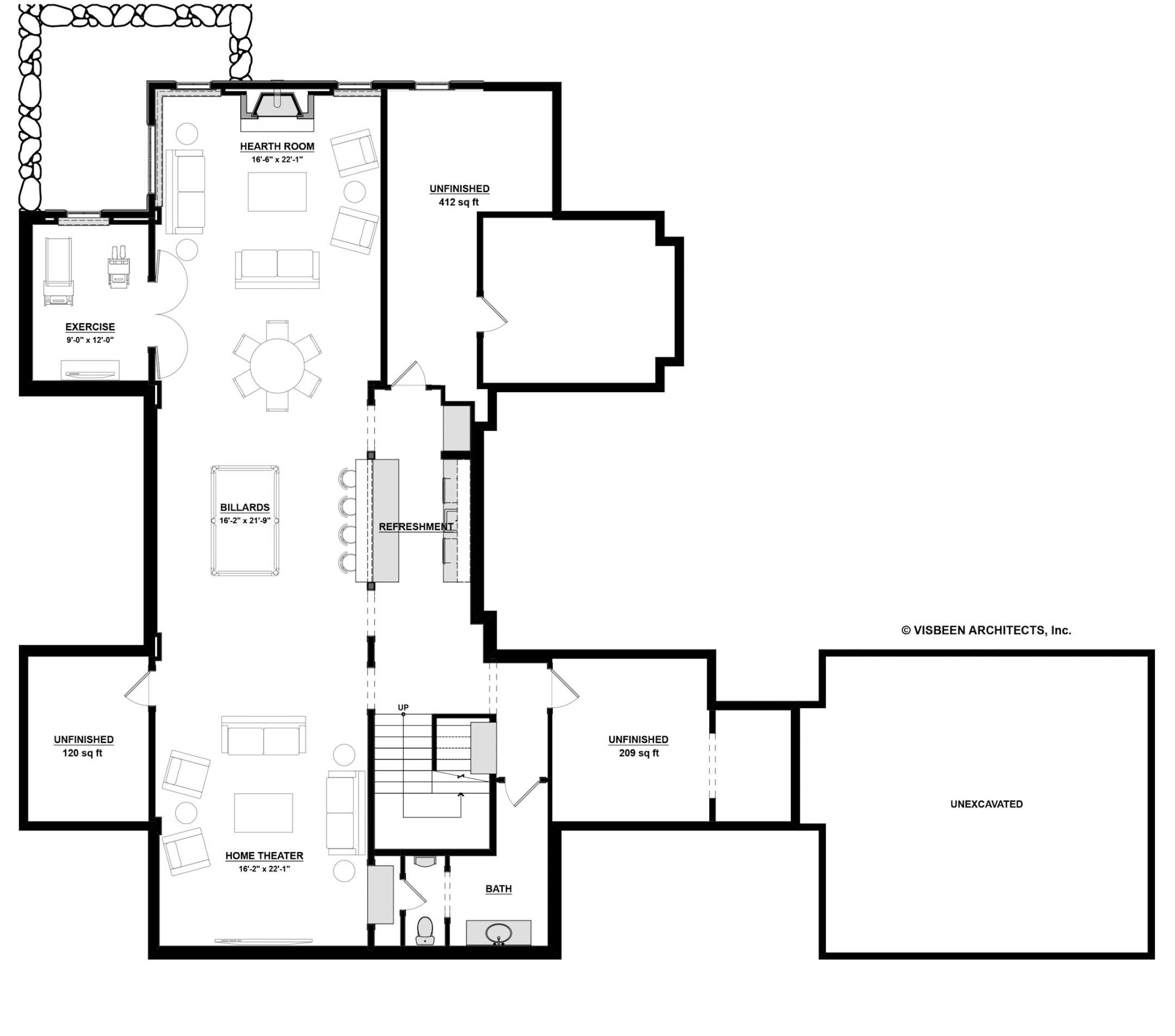
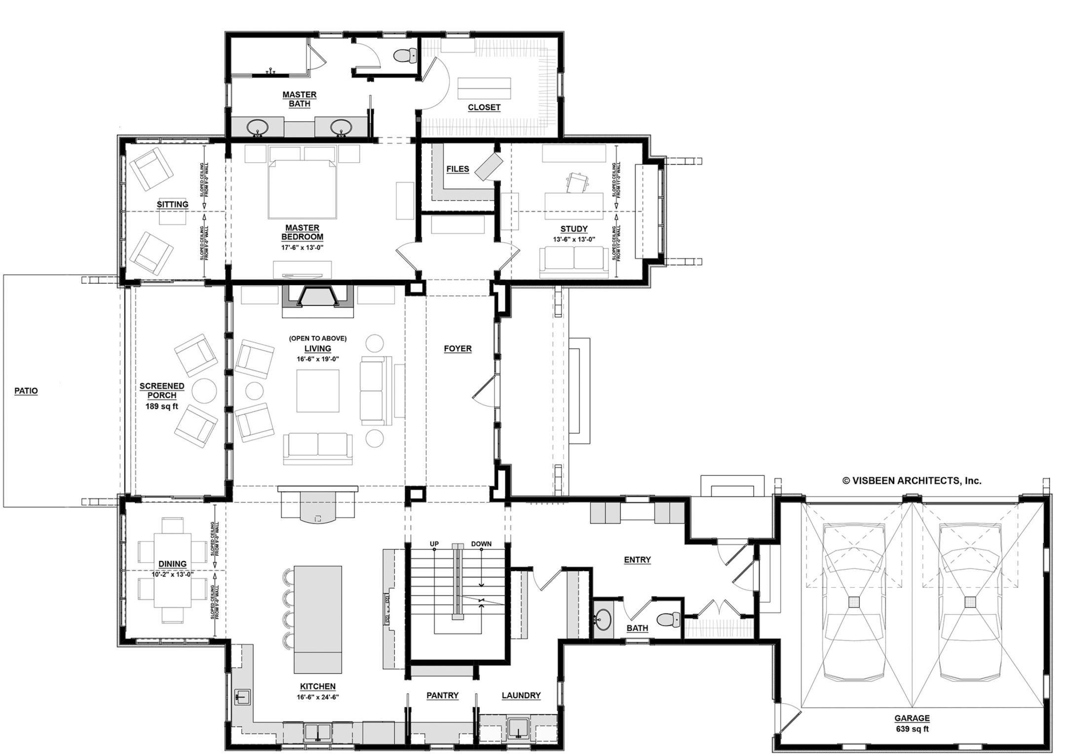
Classic architectural accents give this modern barn-inspired design a historical look that enhances both the exterior and interior. Decorative brackets and large windows surround the welcoming entrance. A board-and-batten exterior with solid stone foundation creates a fresh but classic look. The exterior also features varying symmetrical rooflines with interesting pitches, trusses and a charming cupola over the garage. Inside, the open farmhouse is designed to bring in light and capture outdoor views. A central foyer leads to the great room with a fireplace, soaring ceilings and an abundance of large windows. The dining room and family-style kitchen both have space for daily meals and special-occasion gatherings. Off the garage is a first-floor laundry and roomy mudroom. The main-floor master bedroom suite is appointed with a bath, sitting area and walk-in closet. There is also a private study with a large file room. The second level includes two spacious bedrooms, each with a private bath and a cozy loft area. The unfinished basement has many possibilities, including an exercise room, a billiards area with wet bar and a large home theater.

For information or to buy plans, contact Eplans at eplans.com or call 1-866-228-0193.

Home plan: Classic architectural accents give this modern barn-inspired design a historical look.
Home plan: Classic architectural accents give this modern barn-inspired design a historical look. (The Minnesota Star Tribune)
Home plan: Classic architectural accents give this modern barn-inspired design a historical look.
Home plan: Classic architectural accents give this modern barn-inspired design a historical look. (The Minnesota Star Tribune)
Home plan: Classic architectural accents give this modern barn-inspired design a historical look.
Home plan: Classic architectural accents give this modern barn-inspired design a historical look. (The Minnesota Star Tribune)
about the writer

about the writer

More from No Section

See More
FILE -- A rent deposit slot at an apartment complex in Tucker, Ga., on July 21, 2020. As an eviction crisis has seemed increasingly likely this summer, everyone in the housing market has made the same plea to Washington: Send money — lots of it — that would keep renters in their homes and landlords afloat. (Melissa Golden/The New York Times) ORG XMIT: XNYT58
Melissa Golden/The New York Times

It’s too soon to tell how much the immigration crackdown is to blame.