Home plan: Large farmhouse goes with the flow

November 27, 2020 at 2:19PM
Farmhouse plan goes with the flow.
Farmhouse plan goes with the flow. (Provided/The Minnesota Star Tribune)

PLAN 1070-55

Total sq. feet: 3,075

Bed/Bath: 4/ 3.5

Stories: 2

Garage bays: 3

Foundation: Crawl space

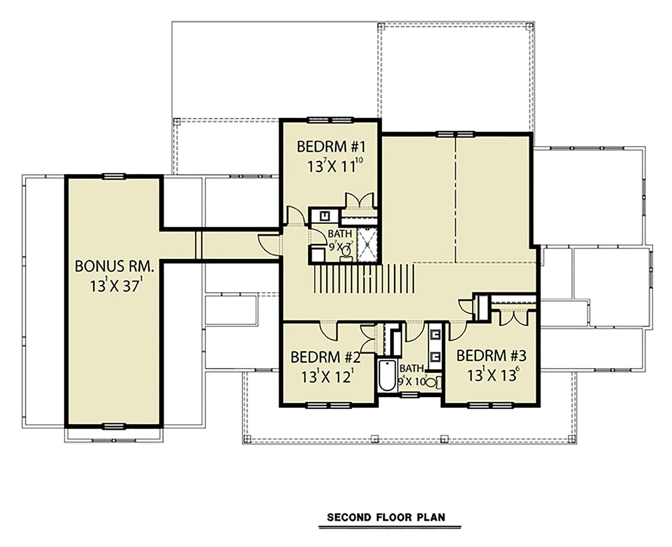
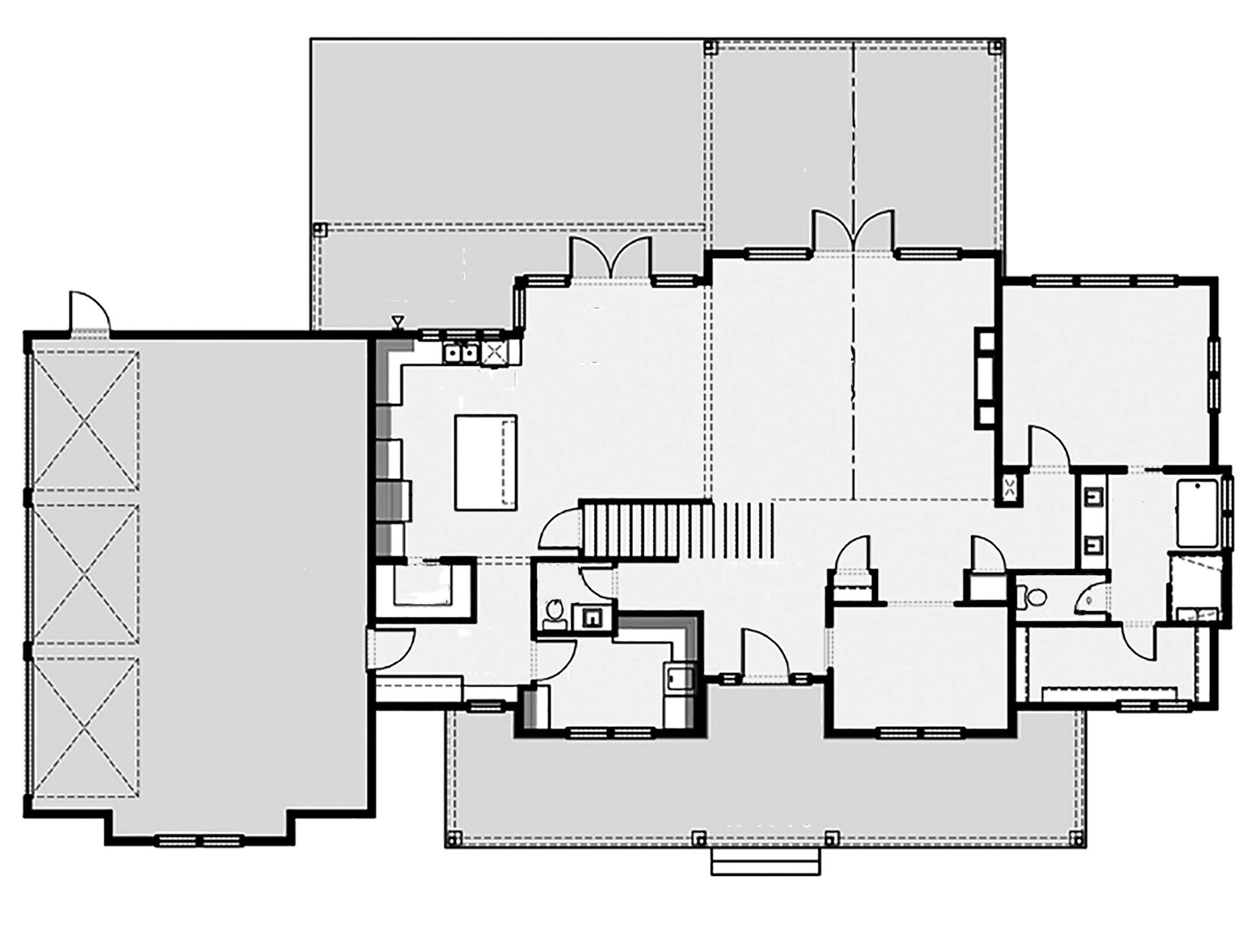
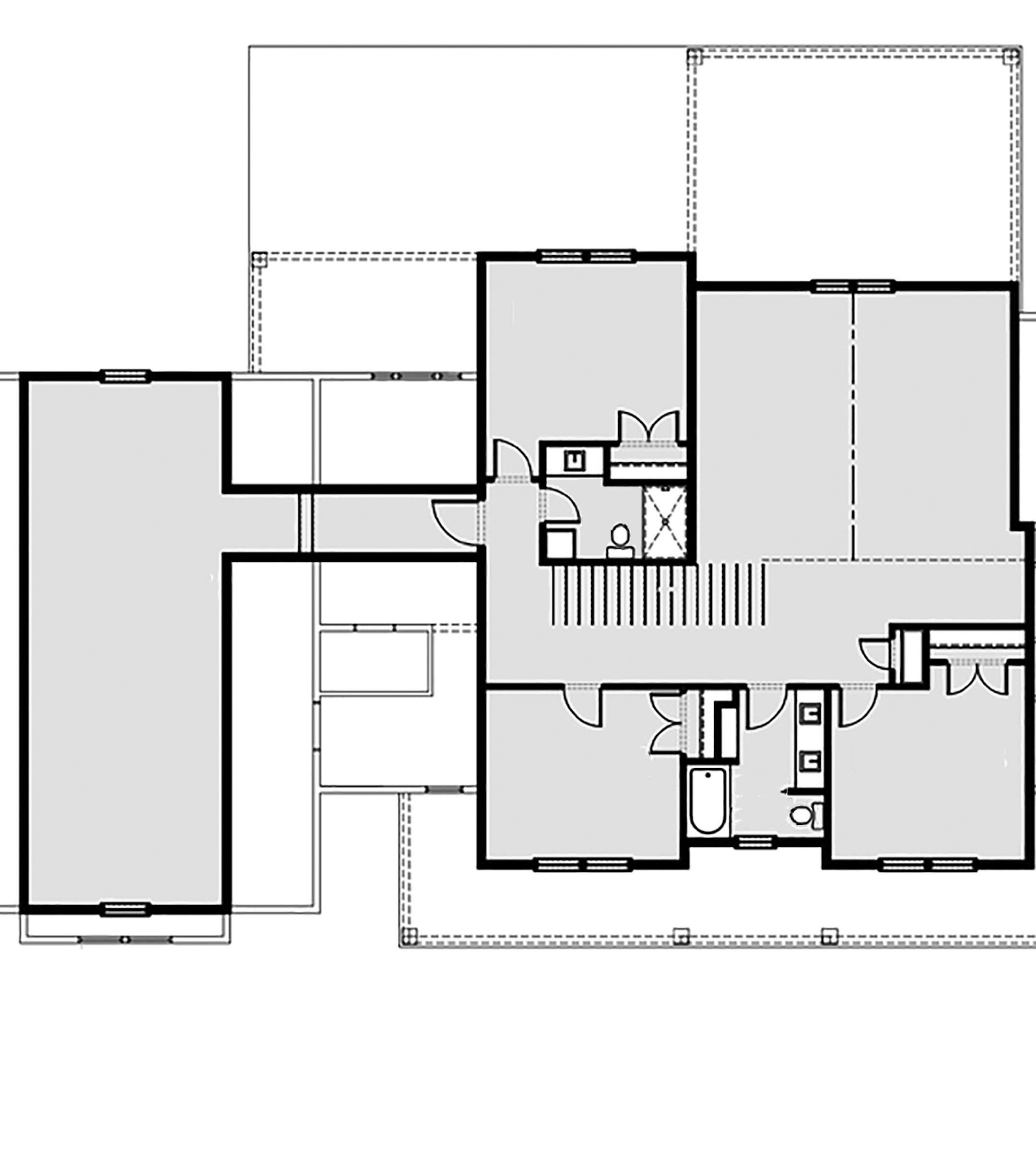
Farmhouse curb appeal is front and center with metal roof accents, a wide front porch and plenty of windows. Inside, the family-friendly home has a versatile den on the main floor and excellent flow between the main living areas, including an open layout between the island kitchen, dining area and great room. The main-level master suite features a luxurious bathroom, and upstairs you'll find three additional bedrooms, two baths and a bonus room that could be used as a home office or study area if needed.

For information or to buy plans, contact Eplans at eplans.com or call 1-800-528-8070.


(The Minnesota Star Tribune)
(The Minnesota Star Tribune)
(The Minnesota Star Tribune)
(The Minnesota Star Tribune)
about the writer

about the writer