Home plan: Farmhouse is open and practical

December 20, 2019 at 5:52PM
Home plan: Open and practical
Home plan: PLAN 1074-1 (The Minnesota Star Tribune)

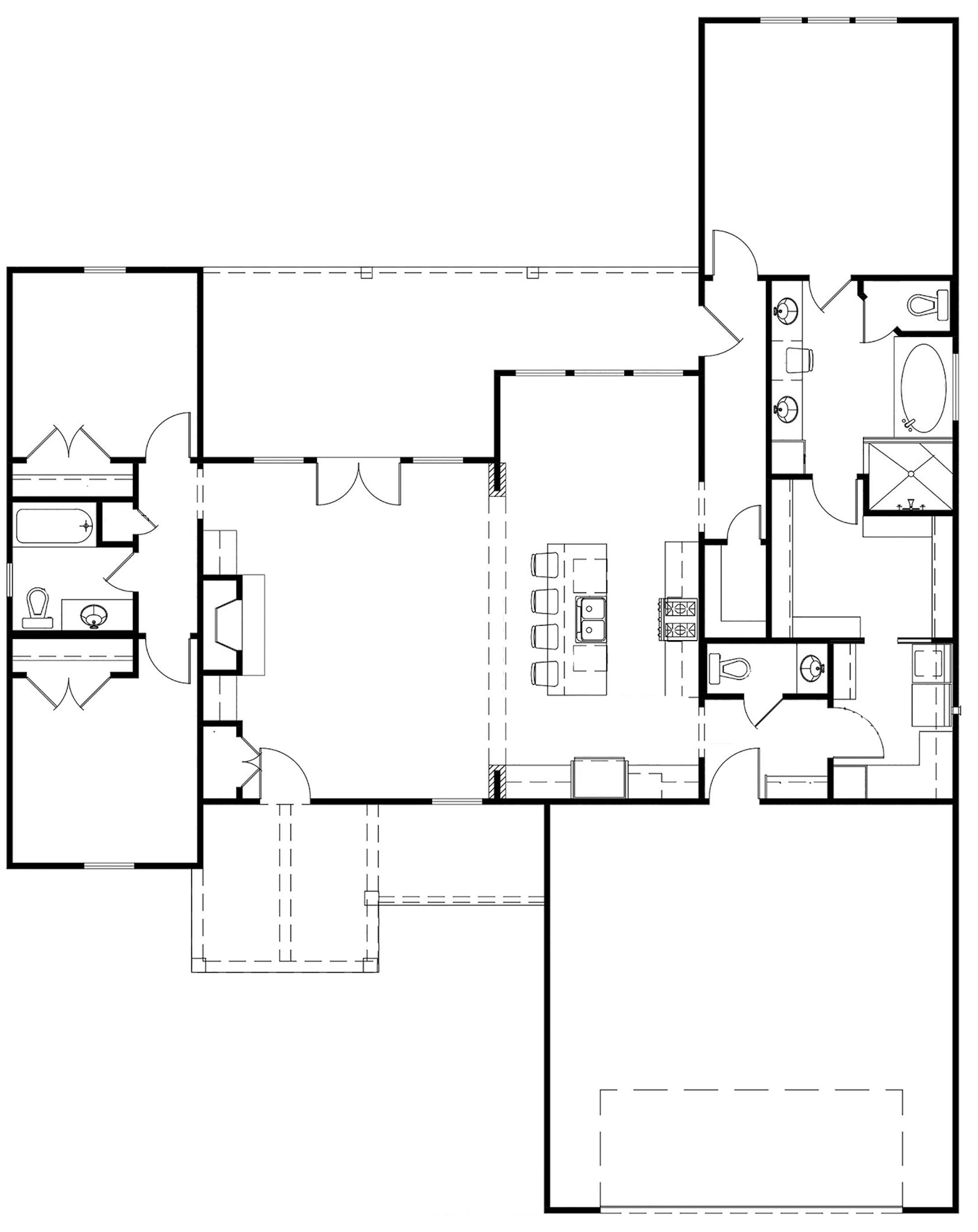
This new design has a one-story open layout with many well-thought-out amenities. The living room flows over to the island kitchen and out to the spacious back porch, which connects to the hallway near the master suite (with a big master closet) for easy access. Another highlight: the fireplace in the great room. The exterior has board-and-batten siding, large quartered windows and barn lighting for a classic farmhouse look.

For information or to buy plans, contact Eplans at eplans.com or call 1-800-528-8070.

PLAN 1074-1

Total sq. feet: 1,814 • Bed/Bath: 3/ 2.5

Stories: 1 • Garage bays: 2

Foundation: Slab

Home plan: Open and practical
Home plan: Open and practical (The Minnesota Star Tribune)
Home plan: Open and practical
Home plan: Open and practical (The Minnesota Star Tribune)
about the writer

about the writer