Home plan: Easygoing and modern

Three-story plan packs in features.

January 10, 2020 at 7:28PM
Home plan: Easygoing and modern
Home plan: Easygoing and modern (The Minnesota Star Tribune)

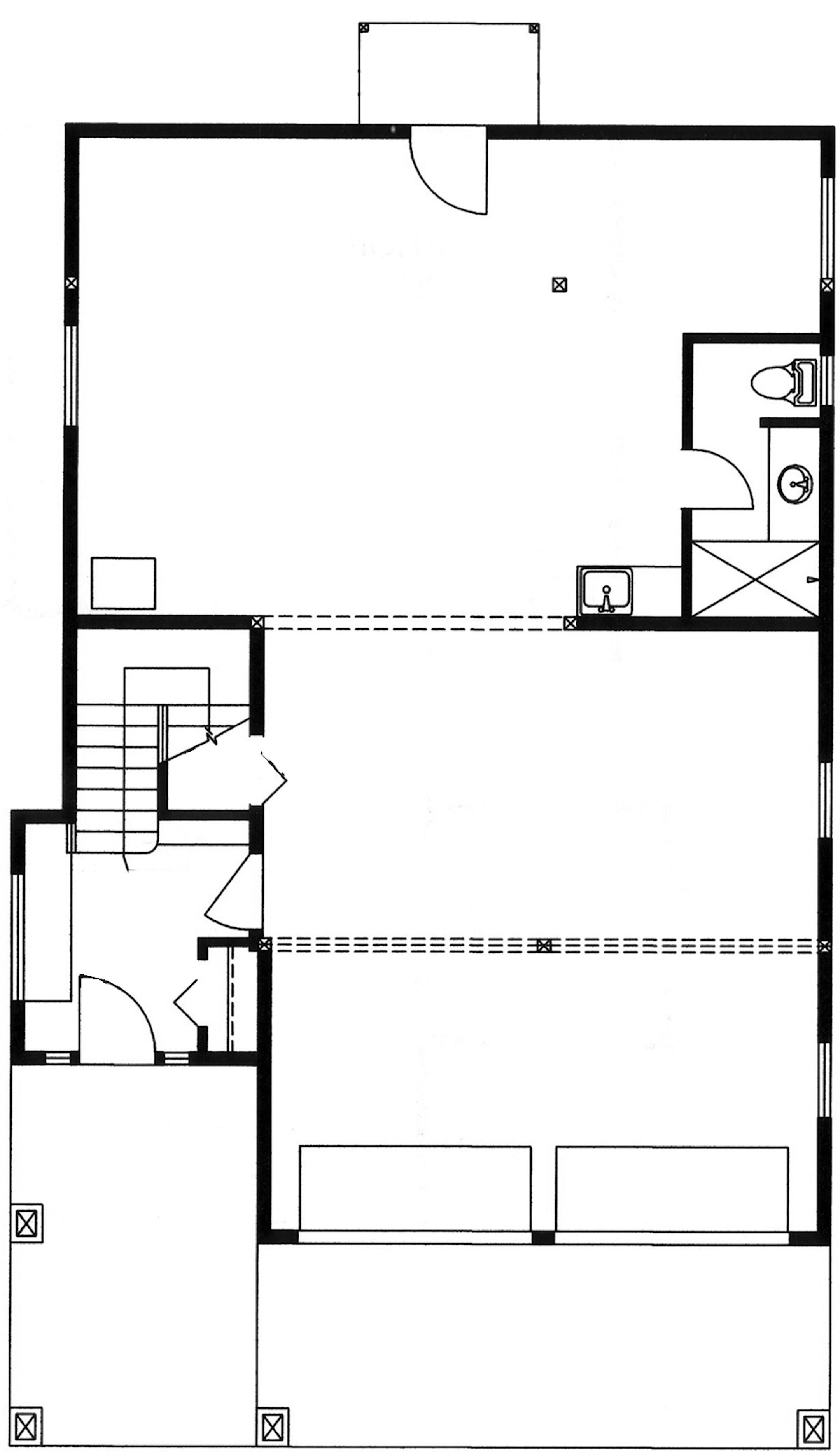
Plan 117-884

Total sq. feet: 2,138

Bed/bath: 2/ 3

Stories: 3

Garage bays: 2

Foundation: Slab

Large windows, clean lines and plenty of outdoor spaces make this floor plan feel fresh and modern. But the real story is the luxurious master suite, which takes over the entire second level with a deluxe bathroom, a huge walk-in closet and access to a quiet sitting area. The kitchen features plenty of counter space, and the main living areas flow into one another. An office could be used as a work space or study, and the lower level sports a two-car garage and a shop space (with a bathroom) for extra storage. Outdoor spaces connect the interior with the exterior when the weather allows.

For information or to buy plans, contact Eplans at eplans.com or call 1-800-528-8070.


(The Minnesota Star Tribune)
(The Minnesota Star Tribune)
(The Minnesota Star Tribune)
(The Minnesota Star Tribune)
(The Minnesota Star Tribune)
(The Minnesota Star Tribune)
about the writer

about the writer

More from No Section

See More
FILE -- A rent deposit slot at an apartment complex in Tucker, Ga., on July 21, 2020. As an eviction crisis has seemed increasingly likely this summer, everyone in the housing market has made the same plea to Washington: Send money — lots of it — that would keep renters in their homes and landlords afloat. (Melissa Golden/The New York Times) ORG XMIT: XNYT58
Melissa Golden/The New York Times

It’s too soon to tell how much the immigration crackdown is to blame.