Home plan Craftsman-style ranch

September 4, 2016 at 4:20AM
Craftsman-style ranch for plan090416 This image is copyrighted by House Plan Gallery Inc. and may NOT be copied, modified, or otherwise utilized in ANY form, whatsoever, without the express written consent of House Plan Gallery, Inc., under penalty of United States Federal prosecution ORG XMIT: http://www.HousePlanGallery.com
Craftsman-style ranch for plan090416 This image is copyrighted by House Plan Gallery Inc. and may NOT be copied, modified, or otherwise utilized in ANY form, whatsoever, without the express written consent of House Plan Gallery, Inc., under penalty of United States Federal prosecution ORG XMIT: http://www.HousePlanGallery.com (The Minnesota Star Tribune)

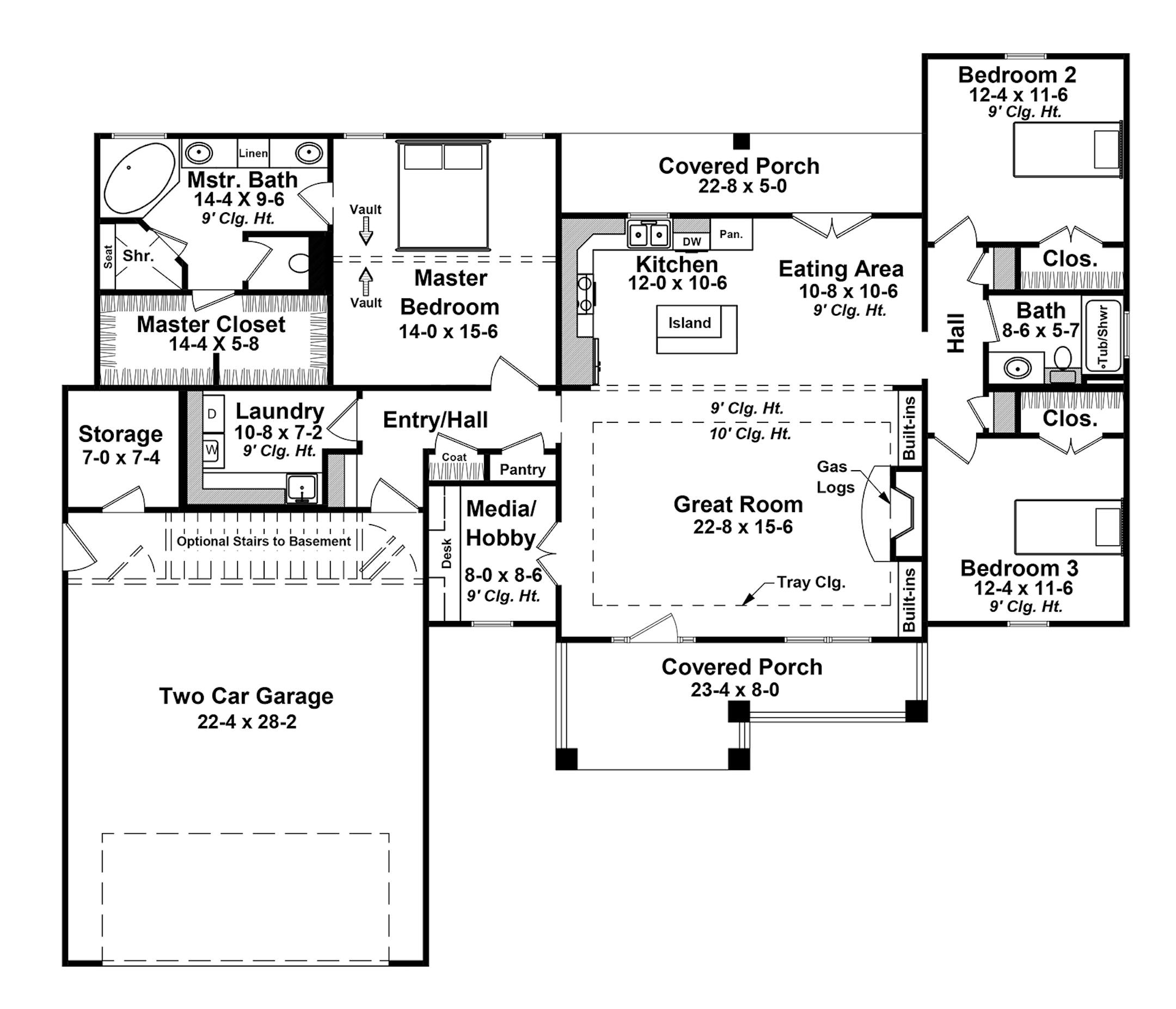
A series of gables draws the eye along the front of this one-level ranch home, while the tapered porch columns add a bit of Craftsman flair. The flexible one-story layout features a hobby/media room that can also serve as a pocket office or homework zone. With an open floor plan, guests can gather at the kitchen island before dinner, enjoy a meal in the open dining room, and then sit around the fireplace in the great room. In the master suite, a spalike bathroom and divided walk-in closet create a relaxing retreat. There's extra storage in the spacious laundry room and in the garage. Covered porches in front and back extend the living spaces to the outdoors.

PLAN HOTW160035

Total finished sq. ft.: 1,801

Bed/bathrooms: 3/2

Stories: 1

Garage bays: 2

Foundation: Unfinished basement, crawlspace

For information or to buy plans, contact Eplans at eplans.com or call 1-866-228-0193.

(The Minnesota Star Tribune)
(The Minnesota Star Tribune)
about the writer

about the writer

More from No Section

See More
FILE -- A rent deposit slot at an apartment complex in Tucker, Ga., on July 21, 2020. As an eviction crisis has seemed increasingly likely this summer, everyone in the housing market has made the same plea to Washington: Send money — lots of it — that would keep renters in their homes and landlords afloat. (Melissa Golden/The New York Times) ORG XMIT: XNYT58
Melissa Golden/The New York Times

It’s too soon to tell how much the immigration crackdown is to blame.