Home plan: Craftsman details with modern layout

October 30, 2020 at 2:02PM
Home plan: Craftsman details with a modern layout
Home plan: Craftsman details with a modern layout (The Minnesota Star Tribune)

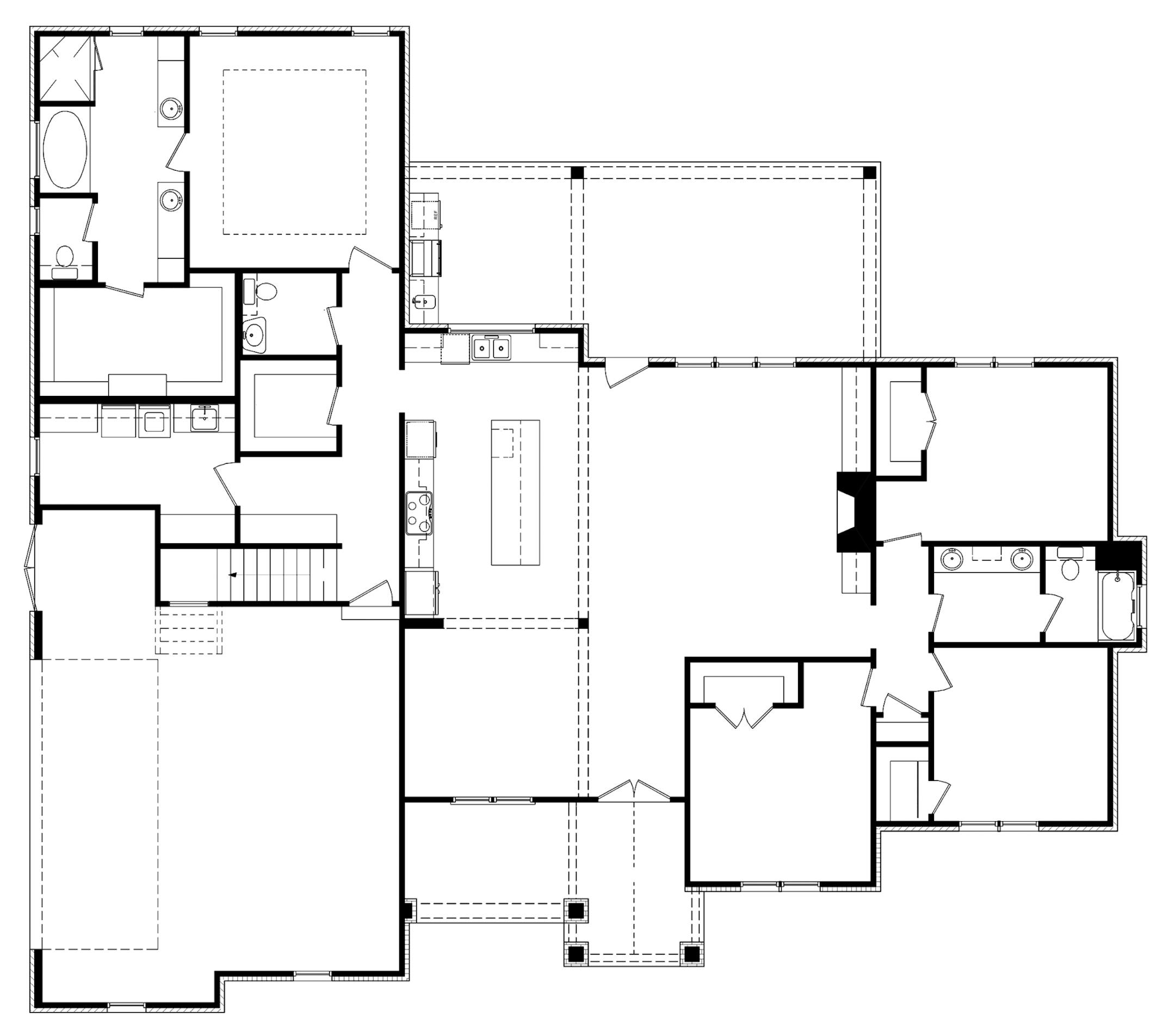
PLAN 430-170

Total sq. feet: 2,589

Bed/Bath: 4/ 2.5

Stories: 1

Garage bays: 2

Foundation: Crawl space, slab, full, walkout

This standout Craftsman-style home offers rustic curb appeal and a modern layout. You'll find raised ceilings and large windows (which offer great views to the exterior) in the main living spaces. The well-equipped kitchen is complete with a large island and eating bar, and the open layout between the kitchen and great room provide effortless flow. A bonus space adds flexibility and could be used as an extra bedroom, media room or office space. Outside, the stonework and board-and-batten siding accentuate the Craftsman design.

For information or to buy plans, contact Eplans at eplans.com or call 1-800-528-8070.


Home plan: Craftsman details with a modern layout
Home plan: Craftsman details with a modern layout (The Minnesota Star Tribune)
Home plan: Craftsman details with a modern layout
Home plan: Craftsman details with a modern layout (The Minnesota Star Tribune)
about the writer

about the writer