Home plan: Country Craftsman updated for today

September 10, 2016 at 5:30PM
Home plan for 091116: Country Craftsman updated for today
Home plan for 091116: Country Craftsman updated for today (The Minnesota Star Tribune)

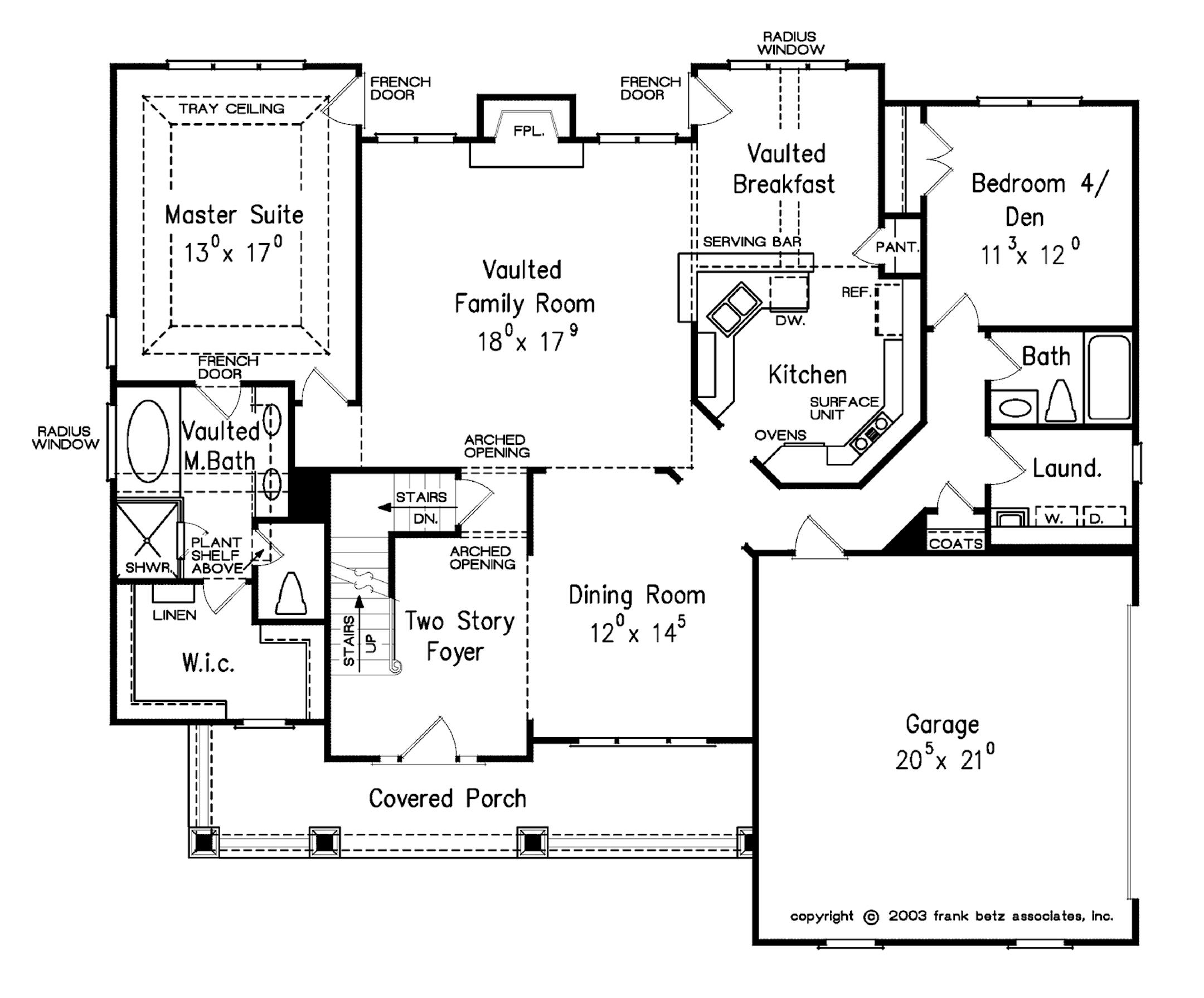
PLAN HOTW160033

Total finished sq. ft.: 2,338

Bed/bathrooms: 4/3

Stories: 2

Bonus space: 305 sq. ft.

Garage bays: 2

Foundation: Unfinished walkout basement, crawlspace

Craftsman-style columns framing a covered front porch add an authentic touch to this two-story home. An elegant entry opens to the vaulted family room, which is warmed by a fireplace. The kitchen's serving bar and the adjacent vaulted breakfast nook provide room for casual meals. A main-floor bedroom could be converted to a home office. The master suite features a vaulted bath and a big walk-in closet. Two bedrooms upstairs share a full bath and an optional bonus room.

For information or to buy plans, contact Eplans at eplans.com or call 1-866-228-0193.

Home plan for 091116: Country Craftsman updated for today
Home plan for 091116: Country Craftsman updated for today (The Minnesota Star Tribune)
Home plan for 091116: Country Craftsman updated for today
Home plan for 091116: Country Craftsman updated for today (The Minnesota Star Tribune)
about the writer

about the writer

More from No Section

See More
FILE -- A rent deposit slot at an apartment complex in Tucker, Ga., on July 21, 2020. As an eviction crisis has seemed increasingly likely this summer, everyone in the housing market has made the same plea to Washington: Send money — lots of it — that would keep renters in their homes and landlords afloat. (Melissa Golden/The New York Times) ORG XMIT: XNYT58
Melissa Golden/The New York Times

It’s too soon to tell how much the immigration crackdown is to blame.