Home plan: Contemporary compact design

Home can fit on narrow lot.

April 1, 2019 at 3:26PM
Home plan: Compact contemporary home is stylish and cool with large windows and mixed siding.
Home plan: Compact contemporary home is stylish and cool with large windows and mixed siding. (The Minnesota Star Tribune)

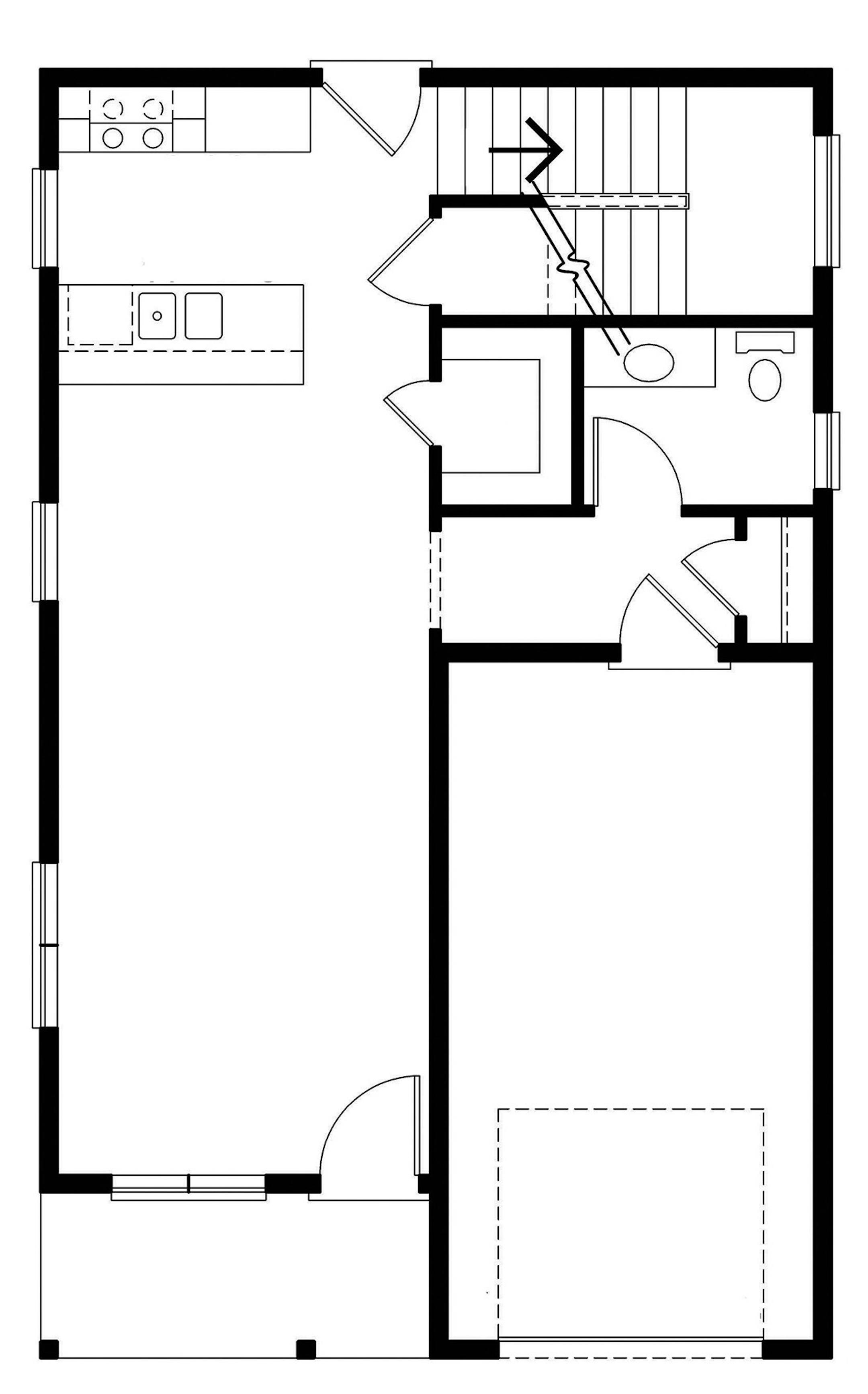
PLAN 20-2320

Total finished sq. ft.: 1,406

Bed/bathrooms: 3 /3

Stories: 2

Garage bays: 1

Foundation: Walkout basement, crawl space, slab

This home plan is stylish and cool with large windows and mixed siding. The sleek and open layout features a kitchen with a casual dining bar and walk-in pantry. Just under 24 feet wide, this home will fit on a small city lot. The master suite includes a walk-in closet and bathroom. Also on the second level are two additional bedrooms, a bathroom and laundry room. The walkout basement offers room for expansion.

For information or to buy plans, contact Eplans at eplans.com or call 1-800-528-8070.


Home plan: Compact contemporary home is stylish and cool with large windows and mixed siding.
Home plan: Compact contemporary home is stylish and cool with large windows and mixed siding. (The Minnesota Star Tribune)
Home plan: Compact contemporary home is stylish and cool with large windows and mixed siding.
Home plan: Compact contemporary home is stylish and cool with large windows and mixed siding. (The Minnesota Star Tribune)
Home plan: Compact contemporary home is stylish and cool with large windows and mixed siding.
Home plan: Compact contemporary home is stylish and cool with large windows and mixed siding. (The Minnesota Star Tribune)
Home plan: Compact contemporary home is stylish and cool with large windows and mixed siding.
Home plan: Compact contemporary home is stylish and cool with large windows and mixed siding. (The Minnesota Star Tribune)
about the writer

about the writer

More from No Section

See More
FILE -- A rent deposit slot at an apartment complex in Tucker, Ga., on July 21, 2020. As an eviction crisis has seemed increasingly likely this summer, everyone in the housing market has made the same plea to Washington: Send money — lots of it — that would keep renters in their homes and landlords afloat. (Melissa Golden/The New York Times) ORG XMIT: XNYT58
Melissa Golden/The New York Times

It’s too soon to tell how much the immigration crackdown is to blame.