Home plan: Classic Colonial even has a cupola

October 29, 2016 at 5:13PM
Home plan for 1030: Classic Colonial even has a cupola
This classic Colonial even has a cupola. (The Minnesota Star Tribune)

PLAN HOTW160041

Total finished sq. ft.: 2,608

Bed/bathrooms: 4/3

Stories: 2

Bonus space: 234 sq. ft.

Garage bays: 2

Foundation: Unfinished

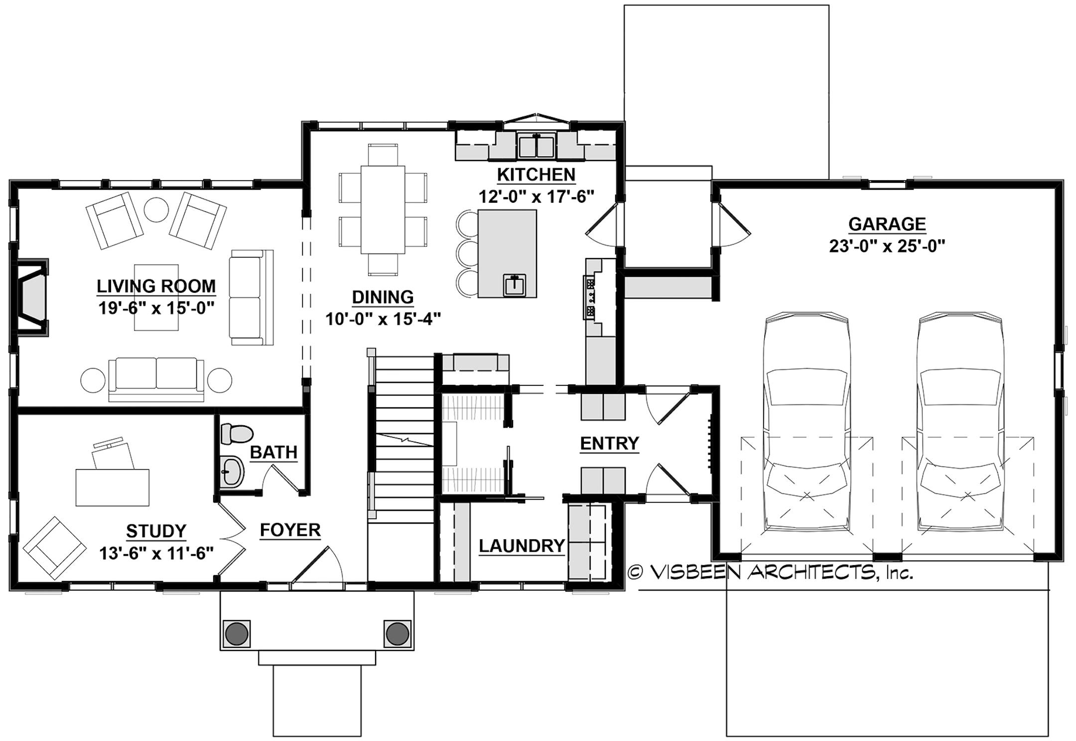
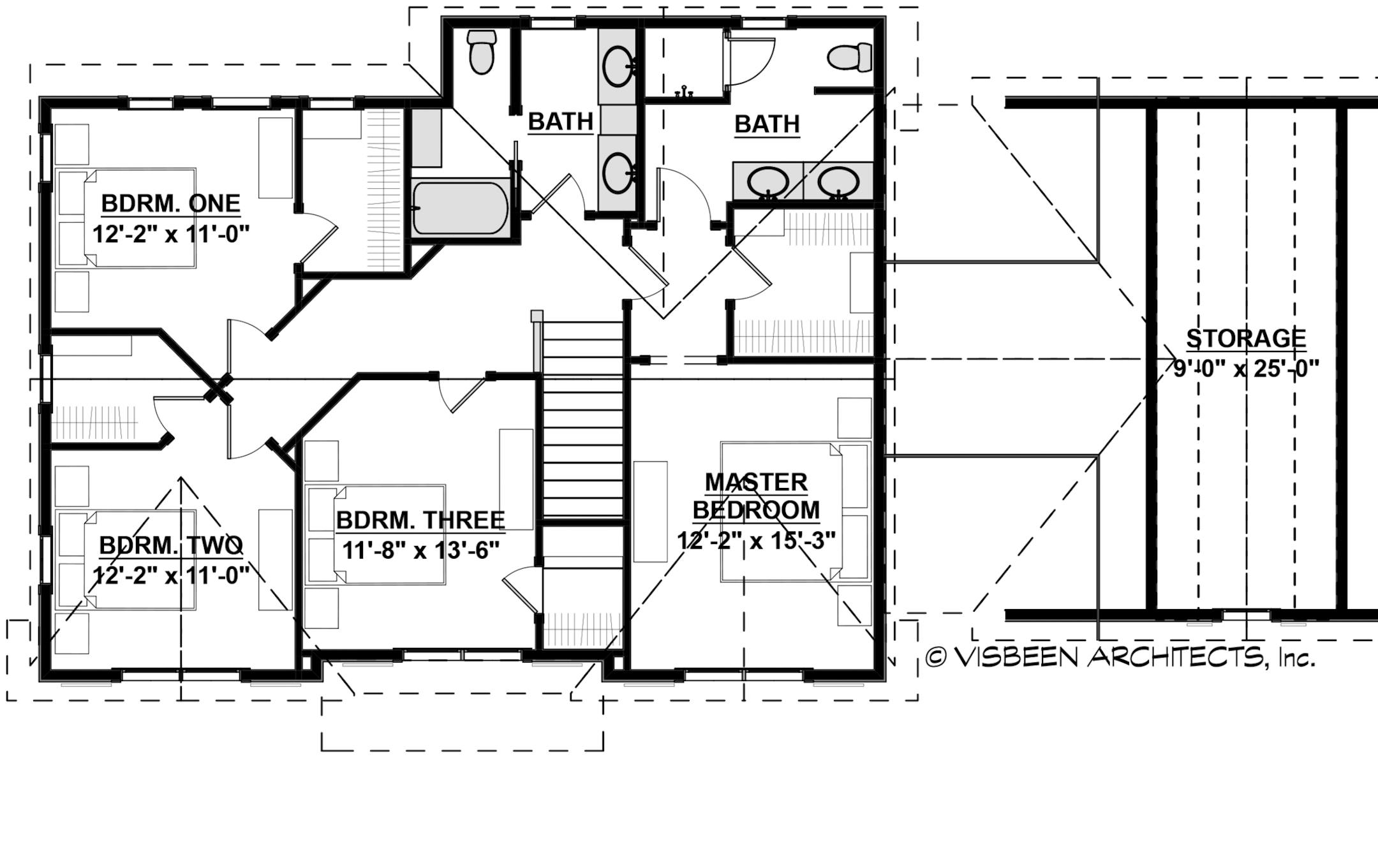
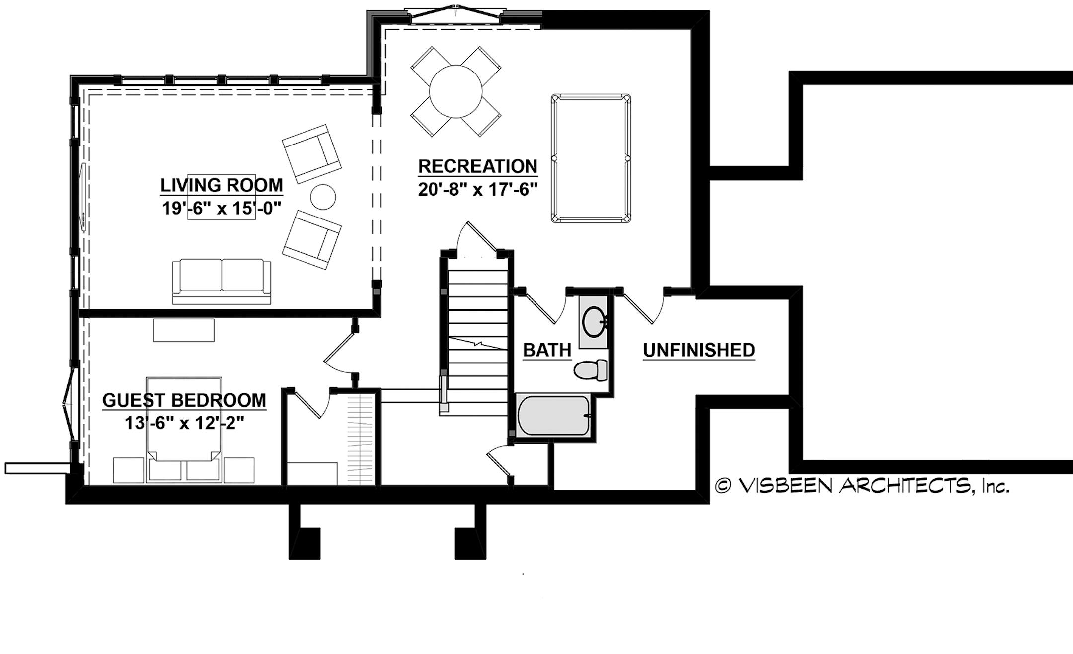
This design boasts classic charm with appealingly symmetrical windows and gables, an eyebrow dormer, and even a cupola above the garage. The family-friendly home offers a multifunctional kitchen island, which flows into the open dining area and then the living room. A study provides space for homework or working from home. Upstairs, the master suite is appointed with a walk-in closet and double sinks and shower in the bathroom. Three additional bedrooms share the hall bath, which also has two sinks. A bonus space above the garage adds handy storage. The organized mudroom includes lockers and a walk-in pantry. The walkout lower level can be finished to hold a rec room, guest quarters and more.

For information or to buy plans, contact Eplans at eplans.com or call 1-866-228-0193.

Classic Colonial even has a cupola. for home plan 103016
Main level of classic Colonial (The Minnesota Star Tribune)
Classic Colonial even has a cupola. for home plan 103016
Upper level of classic Colonial. (The Minnesota Star Tribune)
Classic Colonial even has a cupola. for home plan 103016 (lower level)
Main level of classic Colonial. (The Minnesota Star Tribune)
about the writer

about the writer

More from No Section

See More
FILE -- A rent deposit slot at an apartment complex in Tucker, Ga., on July 21, 2020. As an eviction crisis has seemed increasingly likely this summer, everyone in the housing market has made the same plea to Washington: Send money — lots of it — that would keep renters in their homes and landlords afloat. (Melissa Golden/The New York Times) ORG XMIT: XNYT58
Melissa Golden/The New York Times

It’s too soon to tell how much the immigration crackdown is to blame.