Home plan: Blend of traditional and modern style

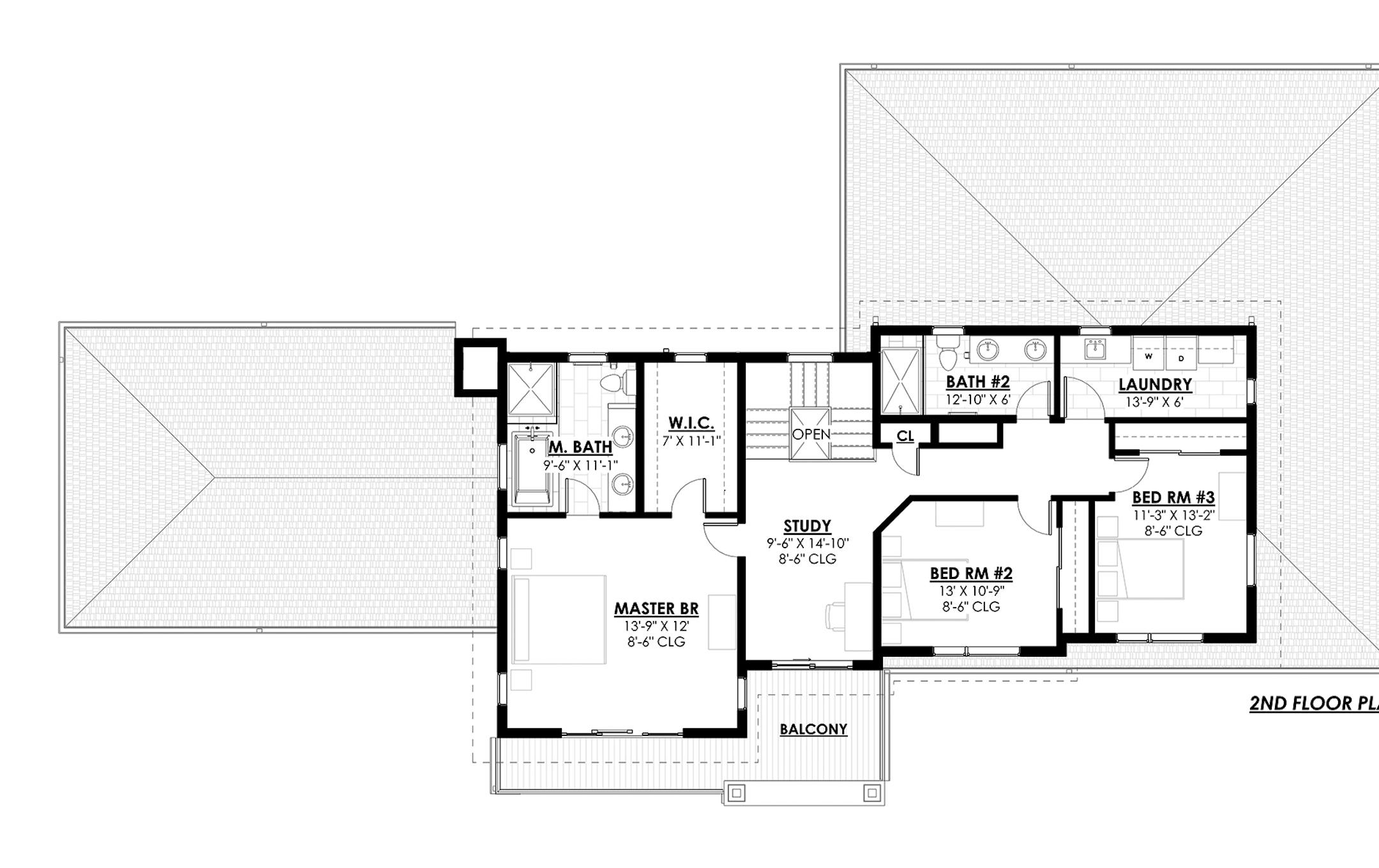
Second-floor laundry room is near upper bedrooms.

August 23, 2019 at 6:54PM
Home plan blends traditional and modern style.
Home plan blends traditional and modern style. (The Minnesota Star Tribune)

PLAN 1042-19

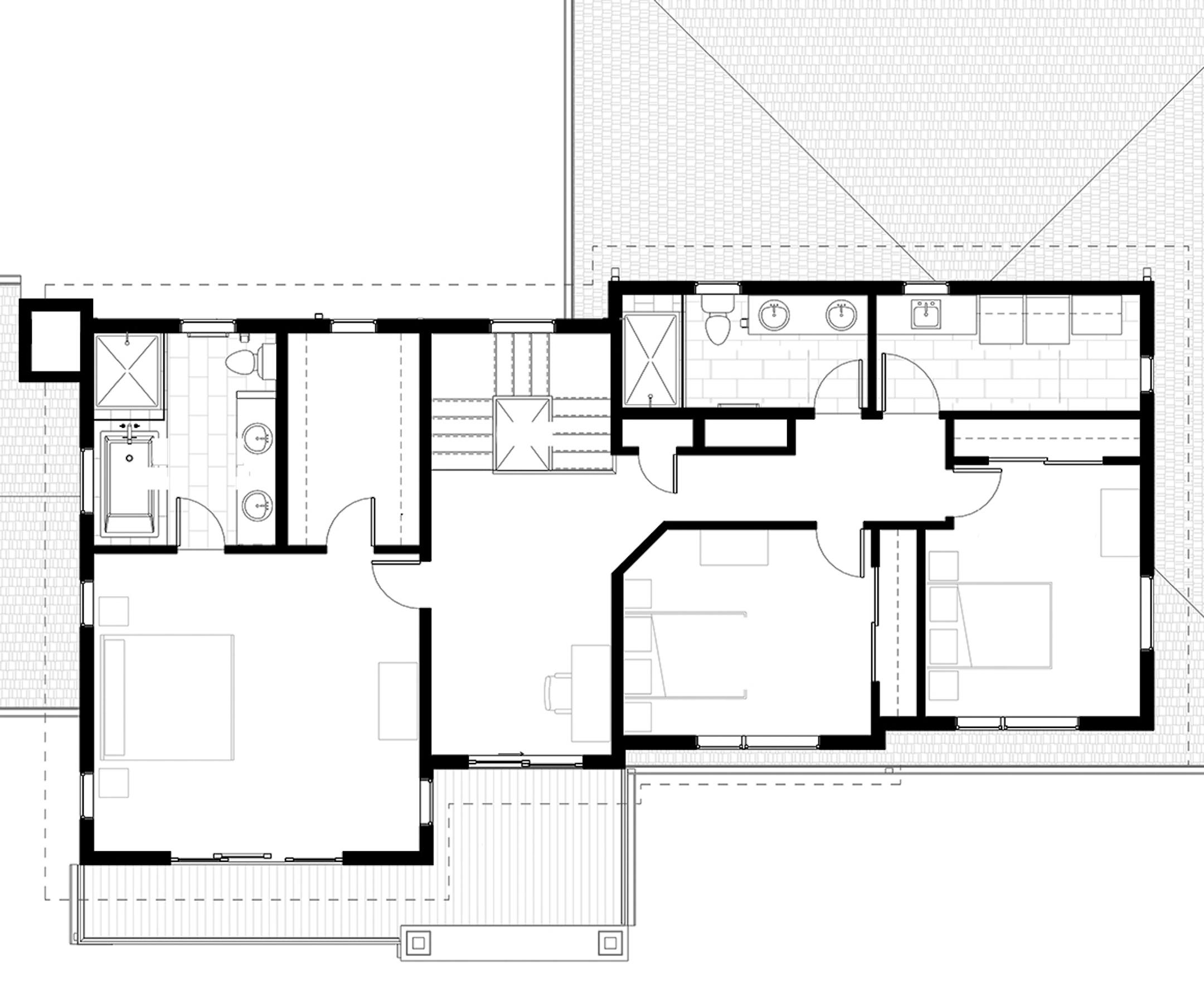
Total finished sq. ft.: 3,334

Bed/bathrooms: 4/4

Stories: 2

Garage bays: 2

Foundation: Crawl space, slab

This sleek and stylish exterior boasts clean lines and plenty of windows. The contemporary home strikes a warm balance between traditional and modern styling. A covered porch flows seamlessly into the gracious great room, creating a flow that emphasizes indoor/outdoor living. Nine-foot ceilings enhance the already spacious feel of the main level, which includes a versatile guest bedroom. An open dining area connects to the kitchen, which features an island for food prep and informal dining. Use the rec room for a home office or as a playroom, art studio or craft space. The second floor has three more bedrooms, including the master, and a second-level laundry room for convenience.

For information or to buy plans, contact Eplans at eplans.com or call 1-800-528-8070.


(The Minnesota Star Tribune)
Home plan blends traditional and modern style.
Home plan blends traditional and modern style. (The Minnesota Star Tribune)
(The Minnesota Star Tribune)
Home plan blends traditional and modern style.
Home plan blends traditional and modern style. (The Minnesota Star Tribune)
about the writer

about the writer

More from No Section

See More
FILE -- A rent deposit slot at an apartment complex in Tucker, Ga., on July 21, 2020. As an eviction crisis has seemed increasingly likely this summer, everyone in the housing market has made the same plea to Washington: Send money — lots of it — that would keep renters in their homes and landlords afloat. (Melissa Golden/The New York Times) ORG XMIT: XNYT58
Melissa Golden/The New York Times

It’s too soon to tell how much the immigration crackdown is to blame.