Home plan: Barn-style house melds country with contemporary

April 12, 2019 at 6:10PM
Home plan: Barn-style melds country with contemporary
Home plan: Barn-style melds country with contemporary (The Minnesota Star Tribune)

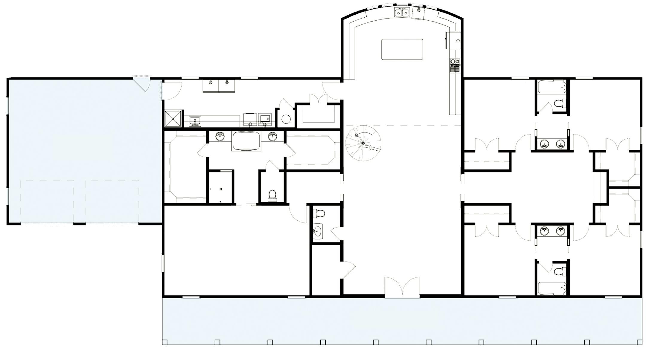
PLAN 923-114

Total finished sq. ft.: 3,277

Bed/bathrooms: 5/4

Stories: 1

Bonus space: 603 sq. ft.

Garage bays: 2

Foundation: Crawl space, slab

This barn-style plan's large covered front porch provides plenty of outdoor living space. The unique one-story design takes advantage of a large lot and sweeping views. A bow window in the island kitchen frames an outdoor vista. The right wing holds four bedrooms and two bathrooms, while the master suite stretches out on the other side and includes a spa-like bathroom with dual sinks. A 603-square-foot bonus space offers room for expansion.

For information or to buy plans, contact Eplans at eplans.com or call 1-800-528-8070.


Home plan: Barn-style melds country with contemporary
Home plan: Barn-style melds country with contemporary (The Minnesota Star Tribune)
Home plan: Barn-style melds country with contemporary
Home plan: Barn-style melds country with contemporary (The Minnesota Star Tribune)
about the writer

about the writer

More from No Section

See More
FILE -- A rent deposit slot at an apartment complex in Tucker, Ga., on July 21, 2020. As an eviction crisis has seemed increasingly likely this summer, everyone in the housing market has made the same plea to Washington: Send money — lots of it — that would keep renters in their homes and landlords afloat. (Melissa Golden/The New York Times) ORG XMIT: XNYT58
Melissa Golden/The New York Times

It’s too soon to tell how much the immigration crackdown is to blame.