Home plan: Accessible modern prairie

March 31, 2017 at 8:10PM
This updated Prairie design blends style, accessibility and energy efficiency with the demands of family living.
This updated Prairie design blends style, accessibility and energy efficiency with the demands of family living. (The Minnesota Star Tribune)

PLAN HOTW170014

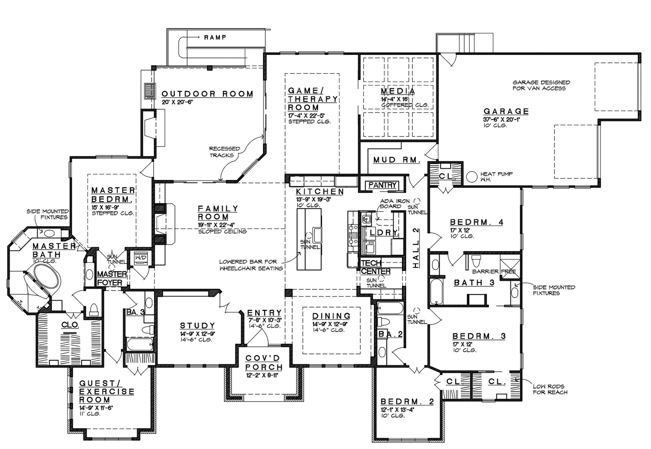
Total finished sq. ft.: 4,545

Bed/bathrooms: 5/4

Stories: 1

Garage bays: 3

Foundation: Slab

This updated Prairie design blends style, accessibility and energy efficiency with the demands of family living. A sleek hipped roof and high windows add Prairie style to the exterior, while high ceilings and lots of natural light brighten the interior. A metal roof adds modern flair. Accessibility features include polished concrete floors and open one-level living spaces, along with raised electrical outlets and lowered switches. Sinks with side-mount faucets, a raised dishwasher and an accessible ironing board are among many features for optimal independent living. The guest suite's walk-in shower is barrier-free. The home is also equipped with an energy-efficient heat-pump water heater, spray-foam insulation, solar panels and a rainwater collection system.

For information or to buy plans, contact Eplans at eplans.com or call 1-866-228-0193.

This updated Prairie design blends style, accessibility and energy efficiency with the demands of family living
This updated Prairie design blends style, accessibility and energy efficiency with the demands of family living (The Minnesota Star Tribune)
about the writer

about the writer