Craftsman ranch with must-have amenities

May 18, 2018 at 7:39PM
Home plan: Craftsman ranch with must-have amenities
Home plan: Craftsman ranch with must-have amenities (The Minnesota Star Tribune)

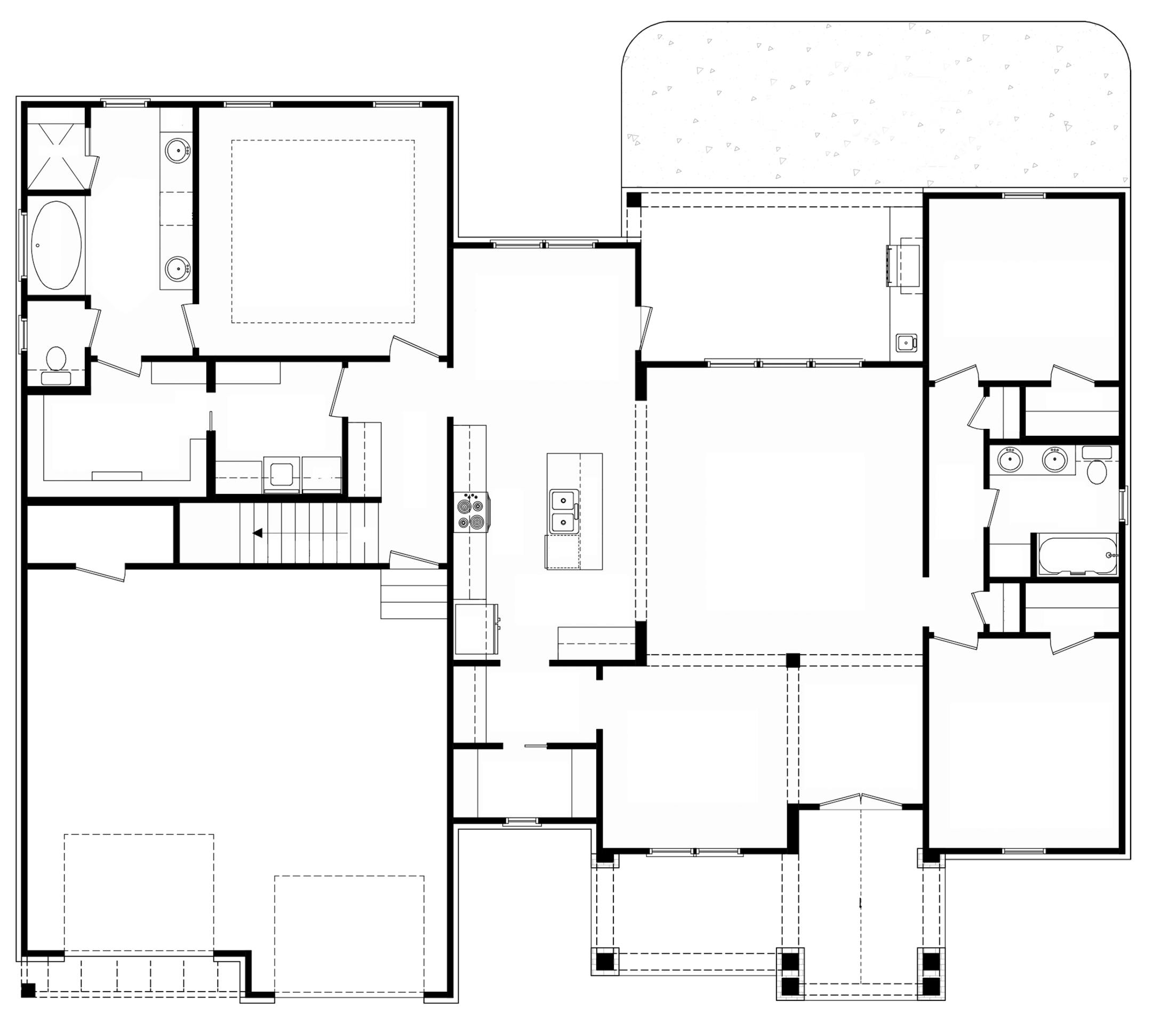
PLAN HOTW180018

Total finished sq. ft.: 2,073 • Bed/bathrooms: 3 /2 • Stories: 1

Bonus space: 430 sq. ft. • Garage bays: 2 • Foundation: Crawlspace, slab

A soaring entryway feels fresh and contemporary with slim columns and a Craftsman-style truss. The updated ranch offers 10-foot ceilings throughout the main living areas to create impressive spaces. In the island kitchen, a butler's pantry adds extra storage next to the walk-in pantry. The three bedrooms include a private master suite appointed with a spa-like bath and a walk-in closet that opens directly to the laundry room. An optional outdoor kitchen takes the party to the back porch. The bonus room provides space for future expansion.

For information or to buy plans, contact Eplans at eplans.com or call 1-866-228-0193.


Home plan: Craftsman ranch with must-have amenities
Home plan: Craftsman ranch with must-have amenities (The Minnesota Star Tribune)
Home plan: Craftsman ranch with must-have amenities
Home plan: Craftsman ranch with must-have amenities (The Minnesota Star Tribune)
about the writer

about the writer

More from No Section

See More
FILE -- A rent deposit slot at an apartment complex in Tucker, Ga., on July 21, 2020. As an eviction crisis has seemed increasingly likely this summer, everyone in the housing market has made the same plea to Washington: Send money — lots of it — that would keep renters in their homes and landlords afloat. (Melissa Golden/The New York Times) ORG XMIT: XNYT58
Melissa Golden/The New York Times

It’s too soon to tell how much the immigration crackdown is to blame.