City farmhouse fits on a narrow lot

December 7, 2018 at 6:58PM
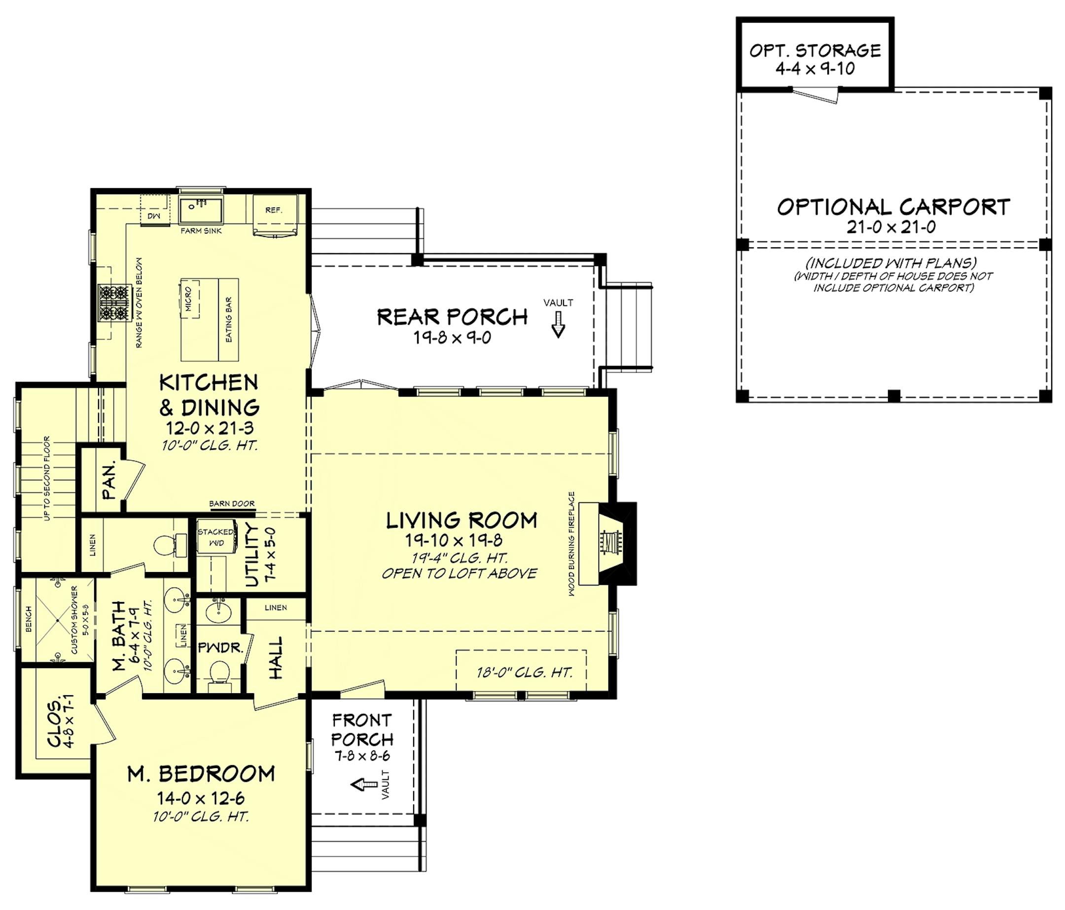
Home plan: City farmhouse fits on a narrow lot
Home plan: City farmhouse fits on a narrow lot (Provided/The Minnesota Star Tribune)

PLAN 430-180 Total finished sq. ft.: 1,969 • Bed/bathrooms: 3 /3 • Stories: 2 • Foundation: Daylight basement, crawl space, slab

An open layout and cozy features, such as a wood-burning fireplace, make this farmhouse design both contemporary and charming. Since the floor plan fits on a smaller lot, it's an ideal choice for a city or vacation home. Both the living room and large island kitchen open to the rear porch for seamless indoor/outdoor living. The main-level master suite offers a luxurious shower with two shower heads. Upstairs, two more bedrooms feature walk-in closets and access to a loft, which could be used as a guest suite or home office.

For information or to buy plans, contact Eplans at eplans.com or call 1-800-528-8070.


Home plan: City farmhouse fits on a narrow lot
Home plan: City farmhouse fits on a narrow lot (Provided/The Minnesota Star Tribune)
(The Minnesota Star Tribune)
about the writer

about the writer