Vikings envision offices, small stadium, retail, hotel at new Eagan site

Ambitious plans for Eagan HQ include stadium, hotel and event center.

September 12, 2015 at 3:44AM
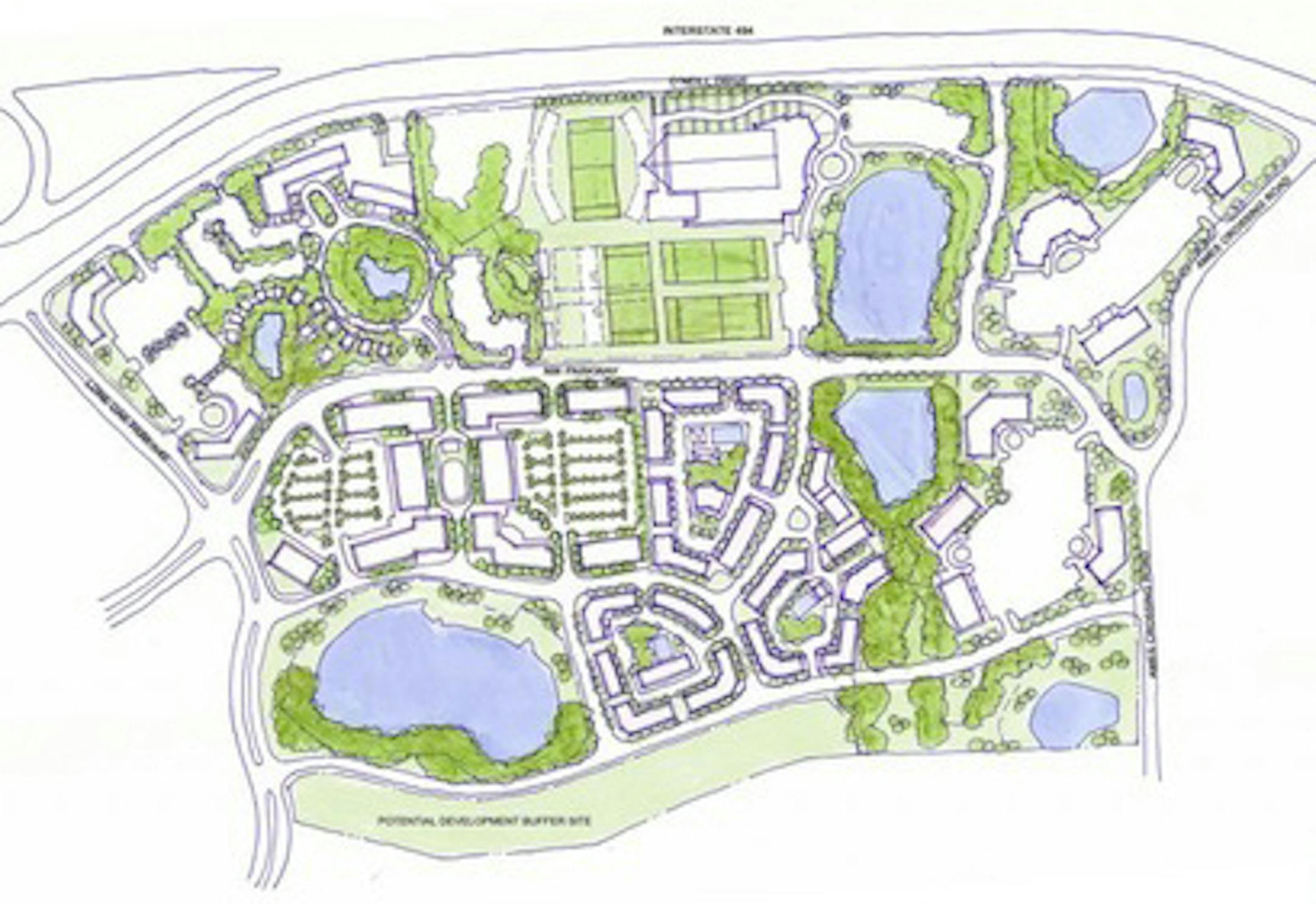
Site plan for Vikings headquarters in Eagan
Site plan for Vikings headquarters in Eagan (./The Minnesota Star Tribune)

The Minnesota Vikings want to create a "destination development" next to their proposed new Eagan headquarters featuring a stadium, housing, a hotel, and a conference and event center, team executives said Friday.

The Vikings have a purchase agreement for two parcels on 194 acres in Eagan just south of Interstate 494. The land now is occupied by two empty buildings that once served as the Northwest Airlines/Delta headquarters and flight training facilities.

The land is a "very rich and deep piece of property," with trees and wetlands, Vikings Chief Financial Officer Steve Poppen said Friday at a news conference.

The team's owners, New Jersey real estate developers Mark and Zygi Wilf, envision a multi­use development that would include an outdoor stadium with up to 10,000 seats, as well as three outdoor grass practice fields and possibly a team Hall of Fame, team officials said.

With their new $1.1 billion stadium in downtown Minneapolis less than a year from completion, the Vikings had been very open about their search for a new headquarters. The team has outgrown its 34-year-old, 12-acre Winter Park home in Eden Prairie in terms of practice facilities, office space and technology.

The surprise came last month when the Vikings announced the acquisition of land in Eagan when most had assumed they would stay in the southwestern metro area. Earlier, a developer had revealed that they were looking at land in the Chanhassen area.

The Eagan land keeps the team on major Twin Cities highway arteries, near both downtowns and much closer to the Minneapolis-St. Paul International Airport.

The team's sprawling "live, work, play" vision for the Eagan land is detailed in its submission to City Hall seeking a zoning change for the parcel from commercial to mixed use. About 40 acres of the land would be used for the team's headquarters and practice facilities.

"The Minnesota Vikings headquarters, together with their training facility and stadium, are the anchor of this development and will draw tenants, users, residents and guests," the team's proposal said. "The stadium will be home to many public and civic events that will enhance the surrounding area."

The first step for the proposal will be a presentation to Eagan's Advisory Planning Commission on Sept. 21. The next will come Oct. 6 before the Eagan City Council.

Council Member Meg Tilley said she's thrilled that the Vikings are coming to town because she believes the development will be done well.

"They want it to be a shining star," she said, adding that the team has emphasized making the project a part of the community. "I'm really very impressed."

Tilley described what she had seen as a broad, preliminary outline for the project. After the City Council takes a look at the proposed zoning change, the Metropolitan Council also will review and vote on the proposed land-use changes, she said.

Tilley said she hasn't talked to the Vikings about tax breaks or subsidies. Vikings Vice President Lester Bagley said the organization will discuss "local economic development tools" with Eagan.

A four-phase plan

The team's offices are currently spread over three buildings in Eden Prairie and downtown Minneapolis. The new facility would put them all together. The Vikings also would build state-of-the-art broadcasting facilities in their new home for video productions.

Bagley said the team hopes to "create an event center where it's interactive" for fans and visitors.

Contingent on market conditions, the plan envisions a four-phase development, beginning with construction as early as next year on the new training facility and headquarters.

Starting in 2019, the second phase would be hotel and retail, with a town-square-type design. Poppen said the hotel probably would have 120 to 150 rooms, with a conference center a couple hundred thousand square feet in size.

The following year, office and residential construction would begin. The final phase, beginning in 2025, would continue office and residential development.

"At this location, any of the proposed uses will thrive standing alone," the proposal said. "When these uses are combined together and with surrounding land uses, and then supported by the Minnesota Vikings as an anchor, the proposed development has an opportunity to be special."

According to the proposal, the site's drainage and greenery also create "unique opportunities for trails and open spaces."

Bagley said the Vikings have been in discussions with Eagan for three months. It's unclear now what will happen with the team's current Winter Park land. Team officials also said they aren't able to say whether the Vikings will continue to hold training camps in Mankato.

The executives declined to say how much they're paying for the land.

The Northwest Airlines land initially went on the market in 2009 for $24.5 million, with the price dropping over time. The Excelsior Group, an Eden Prairie-based developer, bought the land in June for $10.4 million.

Rochelle Olson • 612-673-1747 Twitter: @rochelleolson

Site plan for Vikings headquarters in Eagan
Site plan for Vikings headquarters in Eagan (./The Minnesota Star Tribune)
Site plan for Vikings headquarters in Eagan
Site plan for Vikings headquarters in Eagan (./The Minnesota Star Tribune)
New sight for viking complex in Eagan, MN.
The plans for the new Vikings complex in Eagan feature a stadium, housing, a hotel, and conference and event center. (The Minnesota Star Tribune)
about the writer

about the writer

Rochelle Olson

Reporter

Rochelle Olson is a reporter on the politics and government team.

See Moreicon