Advertisement

Home plan: Today's traditional

June 15, 2013 at 6:13PM
Plan MST0020026 (The Minnesota Star Tribune)
Advertisement

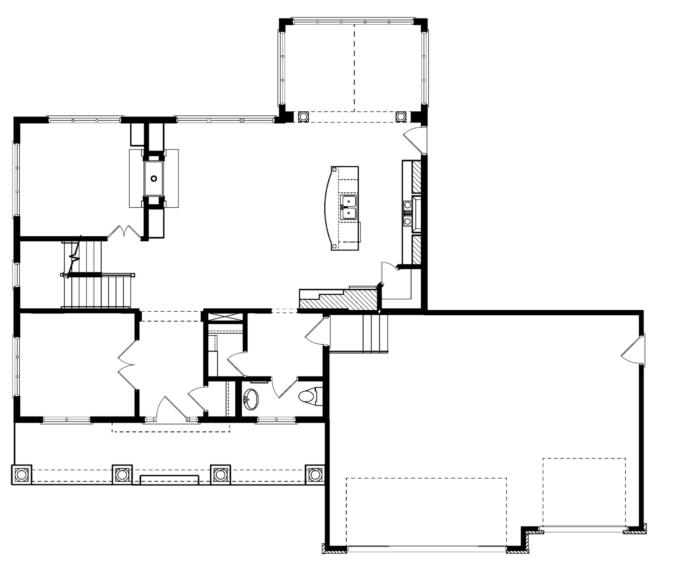
PLAN MST0020026

Total finished sq. ft.: 2,697

Stories: 2 •

Bed/bathrooms: 4 /3

Garage bays: 3

Foundation: Unfinished walkout basement

This traditional two-story home displays four striking columns on stone supports, plus shingle siding, shutters and stone accents. The sidelighted entry opens to a study via double doors. A see-through fireplace warms both the spacious great room and a sunny four-season porch. A formal dining room is adjacent to the island kitchen. A big laundry room is on the upper floor, along with three bedrooms and an owner's suite appointed with dual sinks and walk-in closet.

For information or to buy plans, contact Eplans at www.eplans.com or call 1-877-675-4634.

Advertisement
First floor (The Minnesota Star Tribune)
Second floor (The Minnesota Star Tribune)
about the writer

about the writer

More from Minnesota Star Tribune

See More
card image
Provided/Sahan Journal

Family members and a lawyer say they have been blocked from access to the bedside of Bonfilia Sanchez Dominguez, while her husband was detained and shipped to Texas within 24 hours.

card image
Advertisement