Home plan: New-fashioned farmhouse

August 9, 2013 at 8:42PM
(The Minnesota Star Tribune)

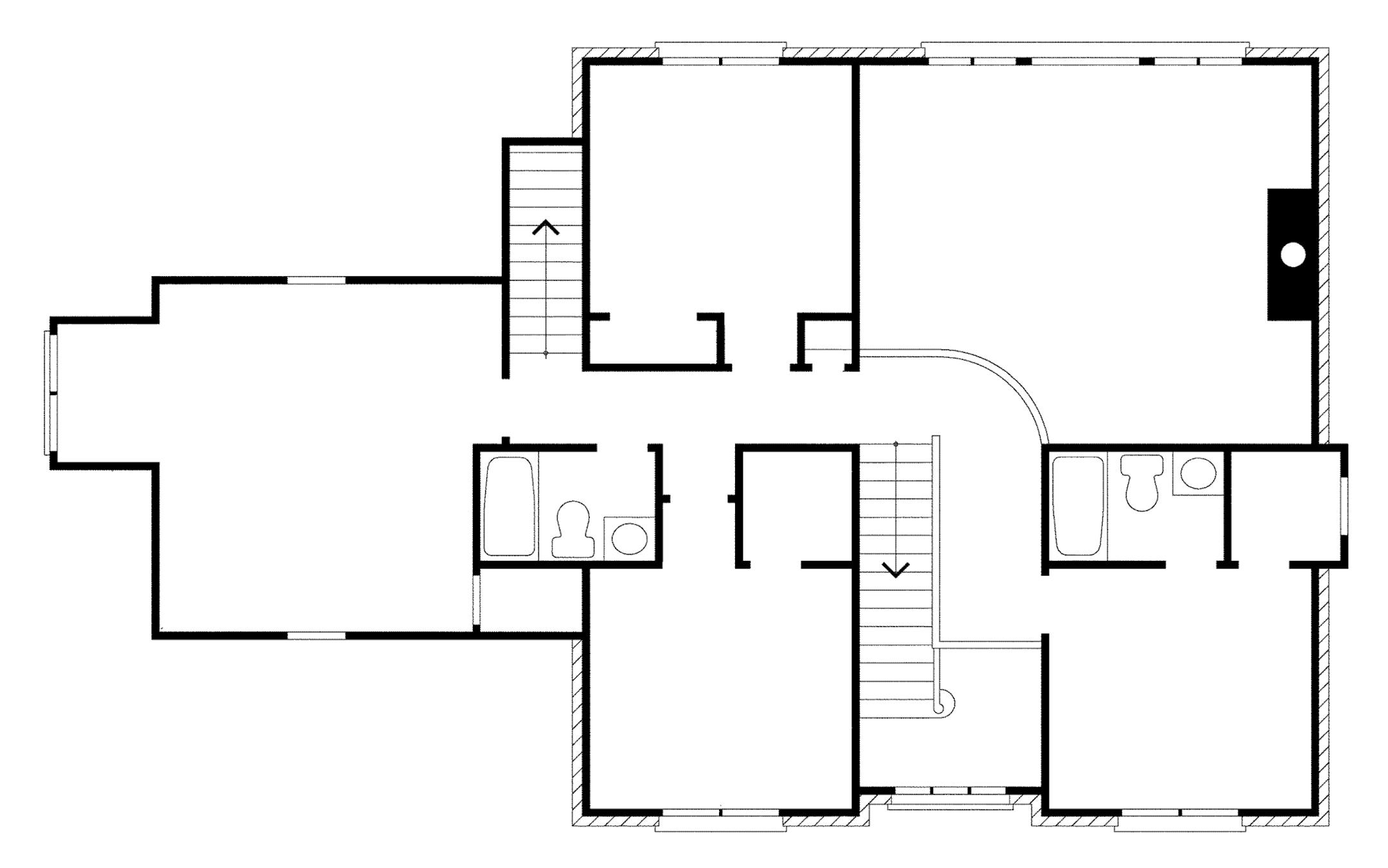
PLAN HOTW130017 • Total finished sq. ft.: 3,139 • Bed/bathrooms: 4/ 4 • Stories: 2 • Bonus space: 286 sq. ft. • Garage bays: 2 • Foundation: Crawlspace

This graceful home features a modern layout with amenities designed for how families live today. A gracious old-fashioned front porch welcomes visitors. Inside, the kitchen offers an electronic charging station as well as a large island for food preparation and casual meals. The breakfast nook flows into the family room appointed with a see-though fireplace. The master suite boasts walk-in closets, porch access and a spacious bathroom. There are three more bedrooms upstairs, along with a bonus room.

For information or to buy plans, contact Eplans at www.eplans.com or call 1-877-675-4634.


(The Minnesota Star Tribune)
(The Minnesota Star Tribune)
(The Minnesota Star Tribune)
about the writer

about the writer

More from Minnesota Star Tribune

See More
card image
J. SCOTT APPLEWHITE, ASSOCIATED PRESS/The Minnesota Star Tribune

The "winners" have all been Turkeys, no matter the honor's name.

In this photo taken Monday, March 6, 2017, in San Francisco, released confidential files by The University of California of a sexual misconduct case, like this one against UC Santa Cruz Latin Studies professor Hector Perla is shown. Perla was accused of raping a student during a wine-tasting outing in June 2015. Some of the files are so heavily redacted that on many pages no words are visible. Perla is one of 113 UC employees found to have violated the system's sexual misconduct policies in rece