Home plan: Craftsman for a new century

October 19, 2013 at 6:16PM
(Randy Salas/The Minnesota Star Tribune)

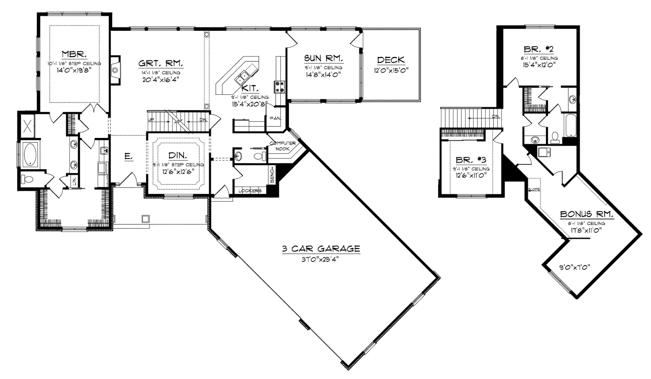
PLAN HOTW130022 • Total finished sq. ft.: 2,811 • Bed/bathrooms: 3 /3 • Stories: 2 • Bonus space: 406 sq. ft. • Garage bays: 3 • Foundation: Unfinished basement

This design features a gracefully curving roofline, a copper barrel dormer roof, angled garage and wooden pillars. The formal dining room is accented with a unique step ceiling. The great room's wall of windows draws in abundant natural light. The adjacent kitchen is defined by columns and features an angled island with extra seating for guests. The sunroom offers access to an adjoining deck. The main-floor master suite is appointed with a step ceiling, big walk-in closet and roomy bathroom with a garden tub. Two additional bedrooms and a large bonus room are on the second floor.

For information or to buy plans, contact Eplans at www.eplans.com or call 1-877-675-4634.

(The Minnesota Star Tribune)
about the writer

about the writer

More from Minnesota Star Tribune

See More
card image
J. SCOTT APPLEWHITE, ASSOCIATED PRESS/The Minnesota Star Tribune

The "winners" have all been Turkeys, no matter the honor's name.

In this photo taken Monday, March 6, 2017, in San Francisco, released confidential files by The University of California of a sexual misconduct case, like this one against UC Santa Cruz Latin Studies professor Hector Perla is shown. Perla was accused of raping a student during a wine-tasting outing in June 2015. Some of the files are so heavily redacted that on many pages no words are visible. Perla is one of 113 UC employees found to have violated the system's sexual misconduct policies in rece