Home plan: Compact Cape Cod

January 21, 2012 at 8:05PM
(Star Tribune/The Minnesota Star Tribune)

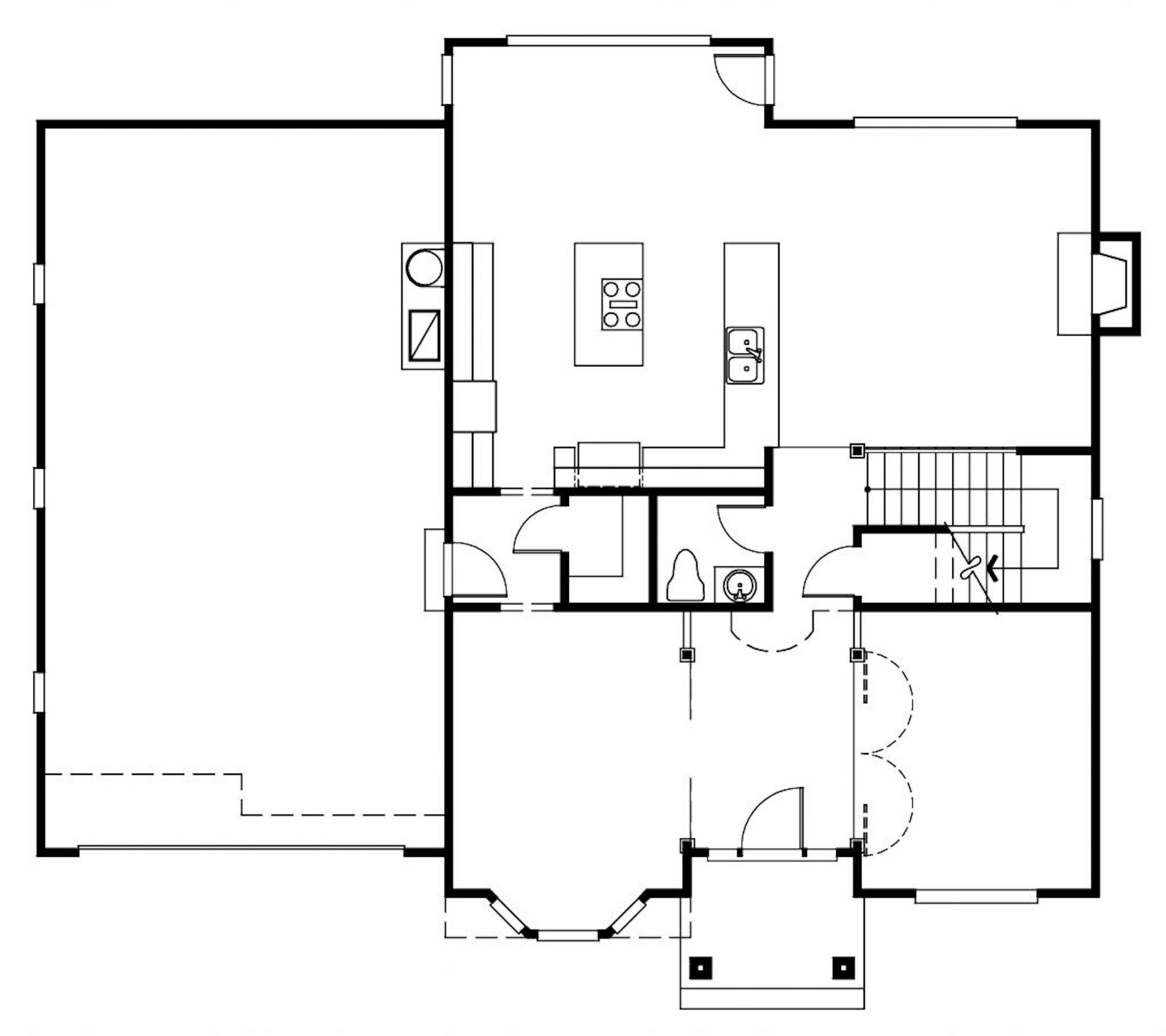
This traditional Cape Cod-style home offers a versatile floor plan that includes elegant formal spaces along with informal living areas. The exterior comprises shingles, shutters and stone. The two-story foyer leads to a family room with a fireplace. The kitchen features an island with an eating bar as well as a breakfast nook. A grand master suite with double closets anchors the upper floor, flanked by an oversize bonus room, three secondary bedrooms, a compartmented bath and a convenient laundry room. The plan also includes a four-car tandem garage for more storage space.

For information or to buy plans, contact the House Designers at thehousedesigners.com or call 1-866-214-2242.

Plan 3220

Total finished sq. ft.: 2,980

Main floor: 1,275

Second floor: 1,705

Bed/bathrooms: 4/3

Foundation: Crawl space

(Star Tribune/The Minnesota Star Tribune)
(Star Tribune/The Minnesota Star Tribune)
about the writer

about the writer

More from Minnesota Star Tribune

See More
card image
J. SCOTT APPLEWHITE, ASSOCIATED PRESS/The Minnesota Star Tribune

The "winners" have all been Turkeys, no matter the honor's name.

In this photo taken Monday, March 6, 2017, in San Francisco, released confidential files by The University of California of a sexual misconduct case, like this one against UC Santa Cruz Latin Studies professor Hector Perla is shown. Perla was accused of raping a student during a wine-tasting outing in June 2015. Some of the files are so heavily redacted that on many pages no words are visible. Perla is one of 113 UC employees found to have violated the system's sexual misconduct policies in rece