Home plan: A colonial with an open layout

November 30, 2013 at 10:25PM
(The Minnesota Star Tribune)

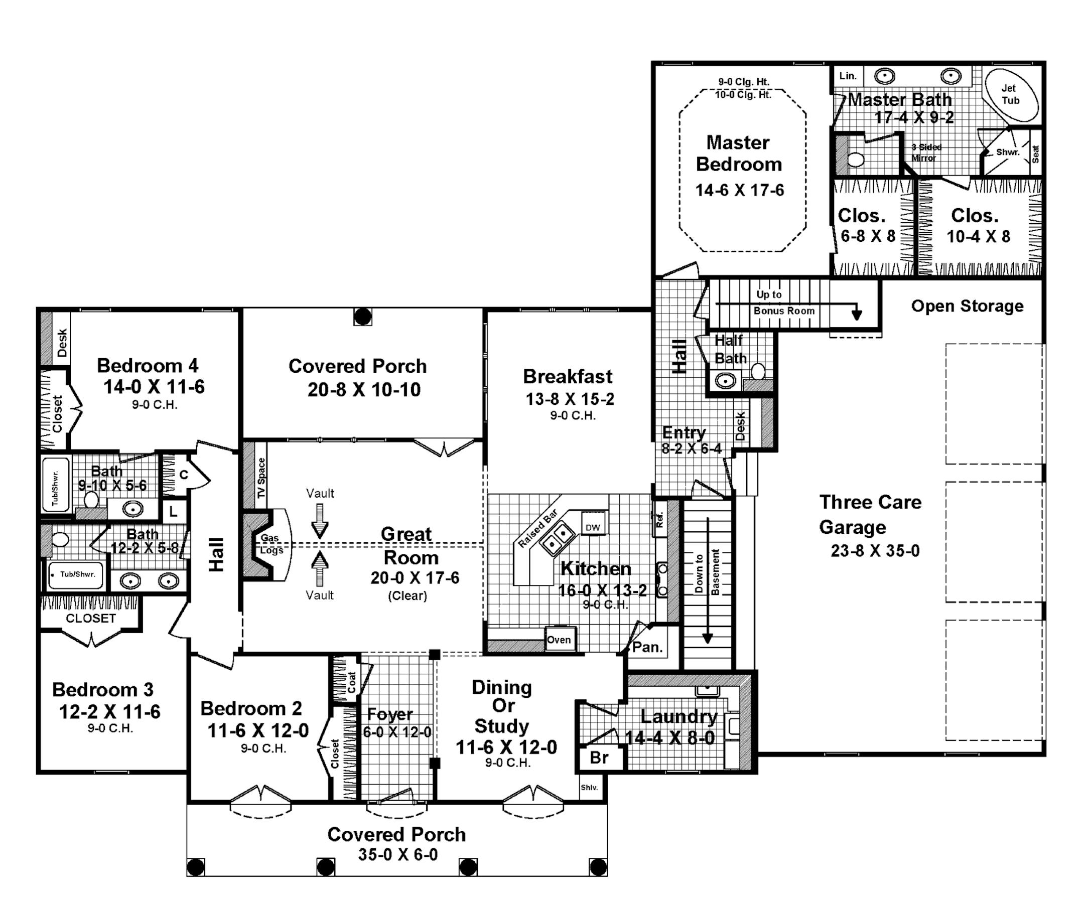
PLAN HOTW130026

Total finished sq. ft.: 2,724

Bed/bathrooms: 4/ 4 • Stories: 1

Bonus space: 443 sq. ft. • Garage bays: 3

Foundation: Unfinished basement

This colonial home plan offers traditional style and an open layout designed for today. The living spaces revolve around the island kitchen, with extra seating at the raised bar or in the nearby breakfast nook. The great room features a wall of windows and French doors that open to the back porch. A room off the foyer can be used as study or formal dining room. The master suite is appointed with two walk-in closets, and a corner jet tub. The other three bedrooms share two full baths on the far side of the home. Bonus room offers space for expansion.

For information or to buy plans, contact Eplans at www.eplans.com or call 1-877-675-4634.

(The Minnesota Star Tribune)
about the writer

about the writer

More from Minnesota Star Tribune

See More
card image
J. SCOTT APPLEWHITE, ASSOCIATED PRESS/The Minnesota Star Tribune

The "winners" have all been Turkeys, no matter the honor's name.

In this photo taken Monday, March 6, 2017, in San Francisco, released confidential files by The University of California of a sexual misconduct case, like this one against UC Santa Cruz Latin Studies professor Hector Perla is shown. Perla was accused of raping a student during a wine-tasting outing in June 2015. Some of the files are so heavily redacted that on many pages no words are visible. Perla is one of 113 UC employees found to have violated the system's sexual misconduct policies in rece