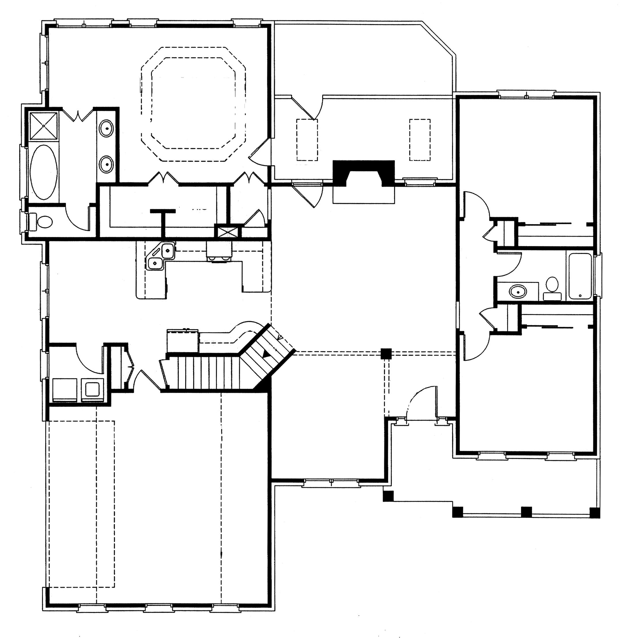
A skylighted screened porch, a back-yard deck and an abundance of windows give this one-level country-style home lots of air and light. A front porch leads to a family room with a fireplace. The screened-in back porch has access to a rear deck. The kitchen has a built-in desk, closet pantry and serving bars overlooking a breakfast nook and family room. A tray ceiling, two walk-in closets and a light-filled sitting area highlight the master bedroom. The private master bath features a dual-sink vanity and garden tub. Space above the garage offers expansion opportunities.
LYNN UNDERWOOD
MORE INFORMATION
Total finished1,787 sq. feet
Main floor1,787 sq. feet
Bed/bathrooms3/2